Ingatlan Televízió
Ingatlan Televízió
további hirdetések
adatlap bezárása

Debrecen 
 

Hivatkozási szám: 5854463
Ingatlan adatai
Irányár: 64 900 000 Ft
Típus: lakás (panel)
Kategória: eladó
Alapterület: 71 m2
Fűtés: távfűtés
Állapota: felújított
Szobák száma: 3
Építés éve: 1970
Szintek száma: 1
Részletes leírás
Debrecen belvárosában a Bethlen utcán, 3 szobás lakás eladó!

Debrecen egyik kedvelt, központi részén, a Bethlen utcán kínálunk megvételre egy tíz emeletes épület 9. emeletén lévő, világos, tágas elrendezésű lakást. A környék infrastruktúrája kiemelkedő: busz- és villamosmegállók néhány perc sétára, a közelben üzletek, iskolák, gyógyszertár, valamint a belváros minden fontos szolgáltatása megtalálható. A társasház rendezett, jó lakóközösséggel rendelkezik.

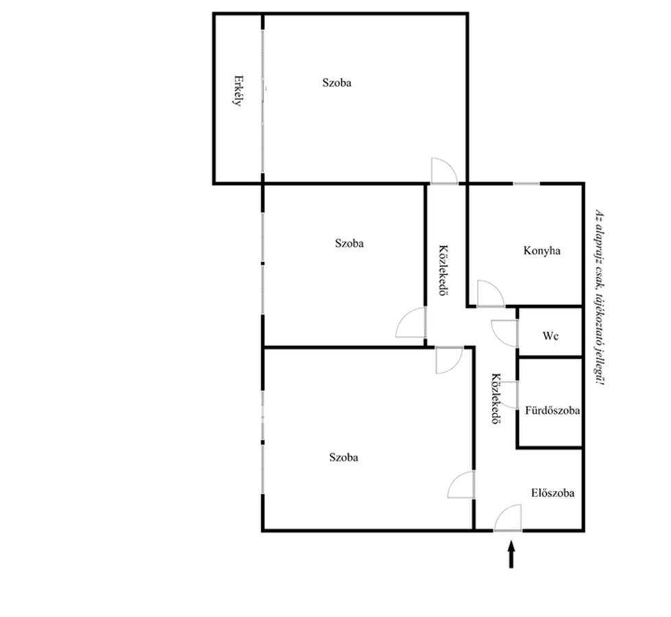
Az ingatlan főbb jellemzői:
-Alapterület: 71 nm
-Emelet: 9. emelet/nem zárószint/
-Fűtés / melegvíz: távfűtés; a melegvíz a fűtésrendszeren keresztül biztosított
-Költséghatékony és kiszámítható rezsivel
-Közös költség: 12 070 Ft
-Elrendezés:
- 3 teljes értékű, különnyíló szoba
- konyha
- fürdőszoba
- külön WC
- előszoba
- közlekedő
-Erkély: az ingatlanhoz erkély tartozik, ahonnan hangulatos kilátás nyílik a Bethlen utcára innen akár a Virágkarnevál menete is megtekinthető
-Tárolás: a lakáshoz közös tárolóhelyiség is tartozik/3-4 lakás/tároló
-Nyílászárók: fa nyílászárók
-Állapot: átlagos, utoljára átfogóbb korszerűsítés 2011-ben történt

Kinek ajánljuk?
Tökéletes választás mindazok számára, akik a belváros kényelmét, a kiváló közlekedést és a praktikus elrendezést szeretnék élvezni. Családoknak, egyetemistáknak és befektetőknek is ideális, mivel a környék keresett és a lakás könnyen bérbe adható.

Ha olyan lakást keres, amely értékálló, könnyen kiadható, ezt érdemes megnéznie! Az OTP Bankcsoport teljes körű ügyintézéssel áll az eladók és a vevők rendelkezésére.

Érdeklődés esetén kérem hivatkozzon a következő referenciaszámra: M318104
További adatok
Telekterület: -
Kert mérete: -
Erkély mérete: -
Felszereltség: -
Parkolás: -
Kilátás: -
Egyéb extrák:  
Hirdető adatai
Hirdető neve: otpip.hu - Nyíregyháza Bocskai utca 18-20 - OTP Ingatlanpont Iroda
Kapcsolattartó: Balázscsikné Hanzel Renáta
Hirdető telefonszáma: +36301673181
Honlap: -
 
Üzenetet küldhet a hirdetőnek, árajánlatot tehet az ingatlanra:
Az Ön neve:
Az Ön e-mail címe:
Üzenet: