Ingatlan Televízió
Ingatlan Televízió
további hirdetések
adatlap bezárása

Baja 
Jókai Mór utca 

Hivatkozási szám: 5854583
Ingatlan adatai
Irányár: 80 000 000 Ft
Típus: lakás (tégla)
Kategória: eladó
Alapterület: 135 m2
Fűtés: gáz
Állapota: felújított
Szobák száma: 5
Építés éve: 2000
Szintek száma: 1
Részletes leírás
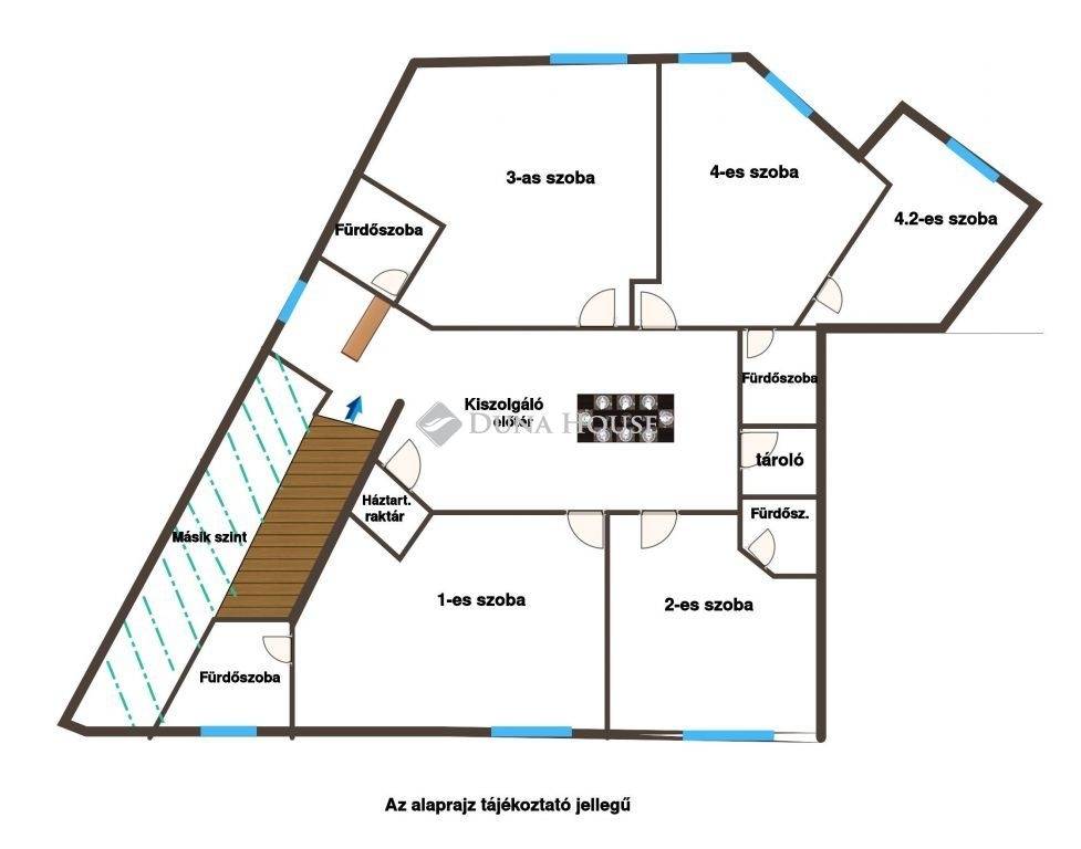
FIGYELEM ELADÓ APARTMAN, REMEK VÁLLALKOZÁSI, BEFEKTETÉSI LEHETŐSÉG!Befektetési számítás miért éri meg?A booking.com adatai alapján jelenleg egy 10 fős társaság egyhetes bajai tartózkodása minimum 500.000 Ft-nál kezdődik.Az ingatlan jelenlegi kialakítása 12-14 fő elszállásolására alkalmas, így teljes szezonban könnyen kiadható.Ha évente csupán 6 hónapig (26 hétig) van kiadva heti 500.000 Ft-ért:Éves bruttó bevétel: 13.000.000 FtVárható adóteher (~15%): 1.950.000 FtFenntartási és működési költségek (~10%): 1.300.000 FtÉves nettó nyereség: ~9.750.000 FtMegtérülési idő: kb. 8,2 évEzután évente közel 10 millió Ft tiszta bevételt termelhet!További előnyök:Akár két különálló lakássá is átalakítható.Tökéletes nagyobb társaságok, családok, céges vendégek elszállásolására.Frekventált, belvárosi környezet!Könnyű bérbeadás, magas kereslet Baján a nagy létszámú apartmanokra.Ne hagyd ki ezt az azonnal működtethető lehetőséget!RÉSZLETEK AZ INGATLANNAL KAPCSOLATBAN:Baja abszolút belvárosában, kiváló elhelyezkedéssel kínálunk eladásra egy 135 m²-es apartmant, amely jelenlegi kialakításával is 12-14 fő elszállásolására alkalmas így kiváló választás lehet befektetőknek, szállásadóknak, vagy vállalkozóknak, akik hosszú távú megtérülést keresnek.Az ingatlan 4 különnyíló szobából, egy ötödik, kapcsolt szobából, kiszolgáló előtérből, valamint 4 saját fürdőszobából áll (mindegyik zuhanyzóval és WC-vel felszerelt). Emellett két külön bejáratú helyiség is rendelkezésre áll: egy háztartási raktár, valamint egy külön tároló. Az apartmanhoz tartozik egy külön kazánház, ahol egy személyzeti mosdó is helyet kapott.A szobák aljzata faparkettás, a falakat dupla gipszkarton és vékony tégla biztosítja, kiváló hangszigeteléssel. A nyílászárók műanyag hő- és hangszigeteltek, a fűtésről pedig központi rendszer gondoskodik kondenzációs gázkazánnal. Az épület 2000-ben épült téglából, és utcafronti bejárattal rendelkezik.További információért, vagy megtekintésért az kérem hívja a megadott telefonszámot, vagy írjon emailt!

Referencia szám: LK088636-ITV
További adatok
Telekterület: -
Kert mérete: -
Erkély mérete: -
Felszereltség: -
Parkolás: -
Kilátás: -
Egyéb extrák:  
Hirdető adatai
Hirdető neve: dh.hu - Baja
Kapcsolattartó: Tresz Péter
Hirdető telefonszáma: +36709456603
Honlap: -
 
Üzenetet küldhet a hirdetőnek, árajánlatot tehet az ingatlanra:
Az Ön neve:
Az Ön e-mail címe:
Üzenet: