Ingatlan Televízió
Ingatlan Televízió
további hirdetések
adatlap bezárása

Pécs 
 

Hivatkozási szám: 5854626
Ingatlan adatai
Irányár: 79 900 000 Ft
Típus: lakás (tégla)
Kategória: eladó
Alapterület: 86 m2
Fűtés: gáz (cirko)
Állapota: felújított
Szobák száma: 3
Építés éve: 1950
Szintek száma: 1
Részletes leírás
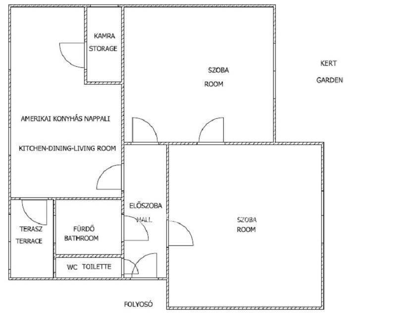
Pécs Belvárosában eladó 86 m?-es, háromszobás, szép állapotú, elegánsan bútorozott és berendezett lakás.
A kis lakásszámú társasházban lévő meleg hangulatú otthon tágas terasszal és saját kerttel kínálja a belvárosi élet kényelmét és a természet közelségét egyszerre.
A lakás gáz cirkó fűtéssel gazdaságosan fenntartható, egyedi mérőkkel rendelkezik, világos és tágasan barátságos tereivel pedig azonnal otthonossá válik.
A 3,2 m belmagasságú szobák kényelmes méretűek, a társasház udvarára néznek.
A tágas étkező - konyha gépesített (AEG gépekkel), külön, ablakos kamrával, fa konyhabútorral rendelkezik.
Hatalmas előszobája jól bútorozható, az összes helyiség megközelíthető innen. Fürdőszobája ablakos, kádas, a külön mellékhelyiség szintén ablakkal rendelkezik.
A közös költség 18e Ft.
A lakás szépen karbantartott, a villanyvezetékek komplett felújítása és ablakok cseréje 3 éve történt.
A ház előtti zsákutcában könnyű parkolni, az Árkád, Vasútállomás, buszpályaudvar illetve a Hullám is gyalogos távolságra találhatók.
További információkért és megtekintésért keressen bizalommal! M318376

79900000 Ft

Referencia szám: M318376
További adatok
Telekterület: -
Kert mérete: -
Erkély mérete: 4 m2
Felszereltség: -
Parkolás: -
Kilátás: -
Egyéb extrák:  
Hirdető adatai
Hirdető neve: otpip.hu - Pécs Rákóczi út 19 - OTP Ingatlanpont Iroda
Kapcsolattartó: Vincze László György
Hirdető telefonszáma: +36-20-938-4141
Honlap: -
 
Üzenetet küldhet a hirdetőnek, árajánlatot tehet az ingatlanra:
Az Ön neve:
Az Ön e-mail címe:
Üzenet: