Ingatlan Televízió
Ingatlan Televízió
további hirdetések
adatlap bezárása

Iváncsa 
 

Hivatkozási szám: 5854648
Ingatlan adatai
Irányár: 32 500 000 Ft
Típus: ház
Kategória: eladó
Alapterület: 72 m2
Fűtés: gáz (konvektor)
Állapota: felújított
Szobák száma: 2+1
Építés éve: 1950
Szintek száma: 1
Részletes leírás
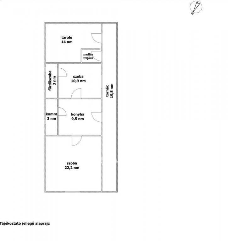
Fejér megye, Iváncsa 72 nm-es családi ház eladó. A tehermentes ingatlan a vasútállomástól 2 km-re, egy 902 nm-es bekerített telken helyezkedik el békés, csendes övezetben.

Az összkomfortos házban nappali, szoba, félszoba, konyha, kamra, fürdőszoba található, valamint tartozik hozzá tornác és két különálló melléképület. A vegyes falazatú ingatlanban cserélték a nyílászárókat műanyagra, valamint a villanyvezetékeket is. A fűtésről gázkonvektorok gondoskodnak. A ház riasztóval felszerelt. Az ingatlan gyorsan birtokba vehető és költözhető.

Az OTP Ingatlanpont teljeskörű ügyintézéssel áll az eladók és a vevők rendelkezésére! A választott ingatlan finanszírozásához kedvezményes hitel- és pénzügyi konstrukciókat kínálunk. Otthon Start hitel, CSOK Plusz teljeskörű ügyintézését vállaljuk. Az adásvétel teljes folyamatát végigkísérjük és ügyvédi közreműködést biztosítunk!

Amennyiben felkeltette érdeklődését az ingatlan, várom megtisztelő hívását akár hétvégén is!
További adatok
Telekterület: 902 m2
Kert mérete: -
Erkély mérete: -
Felszereltség: -
Parkolás: lakáshoz van kültéri parkoló
Kilátás: -
Egyéb extrák:  
Hirdető adatai
Hirdető neve: otpip.hu - Gárdony Bóné Kálmán utca 12 - OTP Ingatlanpont Iroda
Kapcsolattartó: Démann Judit
Hirdető telefonszáma: +36704060378
Honlap: -
 
Üzenetet küldhet a hirdetőnek, árajánlatot tehet az ingatlanra:
Az Ön neve:
Az Ön e-mail címe:
Üzenet: