Ingatlan Televízió
Ingatlan Televízió
további hirdetések
adatlap bezárása

Gyöngyös 
 

Hivatkozási szám: 5854676
Ingatlan adatai
Irányár: 49 500 000 Ft
Típus: lakás (tégla)
Kategória: eladó
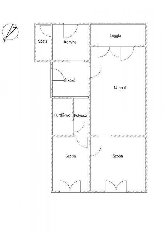
Alapterület: 70 m2
Fűtés: gáz (cirko)
Állapota: felújított
Szobák száma: 2+1
Építés éve: 1970
Szintek száma: 1
Részletes leírás
Gyöngyösön, 70m2-es lakást kínálok eladásra!
Az ingatlan a város kedvelt, Csalogány utcai részén, a földszinten található.
Kedveltségét a jó lakóközösség, közbiztonsága teszi híressé. A tégla építésű ház értékét emelik az remek statikai állapota, lakók által megóvott közös terei . A közös udvart mindössze az első emeleti lakóval kell megosztani. A tulajdoni lapon is szerepelő, saját, 20m2-es garázs önmagában is jelentős értéket képvisel! A lakás jó elosztású, gázcirkós fűtése, villanybojleres meleg víz adója jó állapotú. Tisztasági festés után akár azonnal költözhető.
Amennyiben a fotók és információk felkeltették figyelmét keressen bizalommal!

Referencia szám: M318530-ITV
További adatok
Telekterület: -
Kert mérete: -
Erkély mérete: -
Felszereltség: -
Parkolás: lakáshoz van kültéri parkoló
Kilátás: -
Egyéb extrák:  
Hirdető adatai
Hirdető neve: otpip.hu - Eger Kertész utca 25 - OTP Ingatlanpont Iroda
Kapcsolattartó: Kovácsné Varga Nikolett
Hirdető telefonszáma: +36302471008
Honlap: -
 
Üzenetet küldhet a hirdetőnek, árajánlatot tehet az ingatlanra:
Az Ön neve:
Az Ön e-mail címe:
Üzenet: