Ingatlan Televízió
Ingatlan Televízió
további hirdetések
adatlap bezárása

Ercsi 
 

Hivatkozási szám: 5854692
Ingatlan adatai
Irányár: 99 000 000 Ft
Típus: lakás (tégla)
Kategória: eladó
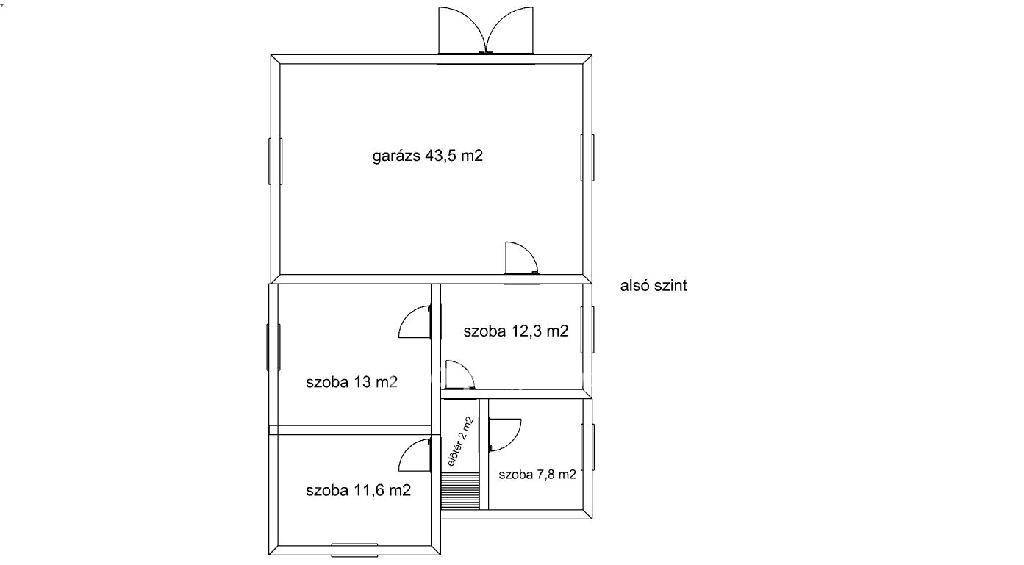
Alapterület: 274 m2
Fűtés: gáz (cirko)
Állapota: felújított
Szobák száma: 6
Építés éve: 2000
Szintek száma: 2
Részletes leírás
Kétgenerációs otthonná alakítható családi ház eladó nagy telekkel, csendes zsákutcában

Ercsi egyik nyugodt, forgalommentes zsákutcájában, kínáljuk eladásra ezt a kiváló adottságokkal rendelkező, tégla építésű, masszív szerkezetű családi házat. A ház 2000-ben épült, cseréptetős, teljesen körbejárható, jó állapotú és kiváló elrendezésű.

A lépcsőház megnyitásával az ingatlan kétgenerációs családi házzá alakítható, így akár több generáció együttélésére vagy nagyobb család számára is ideális választás.

Főbb jellemzők:
Az épület:
Építés éve: 2000.
Szerkezet: tégla.
Tető: cserép, kiváló állapotban.
Kémény állapota: rendben.
Nyílászárók: jó állapotban.
Beázás, penész: nincs.
Fűtés: összes közmű bevezetve (gáz, víz, villany, csatorna).
Napelem: nincs, de a tetőszerkezet alkalmas későbbi telepítéshez.
Fúrt kút: nincs.
Az ingatlan körbejárható.
A ház alatt nagy pince, 4 különálló helyiséggel, tökéletes tárolásra, műhelynek, hobbihelyiségnek.

Telek:
Méret: 1700 m2.
Jogilag kettéválasztható, a jobb oldala a teleknek rész külön építési telekké alakítható, remek befektetési lehetőség!
Rendezett kert, gyümölcsfákkal.
Több melléképület a telken, tárolásra, kerti és egyéb eszközök számára.
Garázs + nyílt kocsibeálló a parkolásra.

Az ingatlan csendes zsákutcában található, amelynek végén közvetlenül erdő nyílik, ideális:
sétához, kutyasétáltatáshoz, természetben való kikapcsolódáshoz.
A környék csendes, családias, nincs: nagyfeszültségű vezeték, gyár, szemétégető, forgalmas út, vonatközeli zaj, szennyvíztelep a környéken.
A környező utcák rendezettek, az ingatlan előtt aszfaltos út, rendezett előkert.

Infrastruktúra:
Közlekedés:
Buszmegálló: 5, 10 perc séta.
Budapest (M6 autópálya): 5 perc autóval.
Martonvásár: 10 perc.
Dunaújváros: 15 perc.
Ideális ingázóknak is!

Oktatás
Óvoda, általános iskola: 3, 5 perc autóval.
Középiskola Martonvásáron és Érden.

Vásárlási lehetőségek
Aldi, Penny, Coop, kisebb boltok: 5 perc
Gyógyszertár, orvosi rendelő, posta: közelben.

Tulajdoni helyzet:
4 tulajdonos (családon belüli tulajdonrészek, mindenki egyet ért az eladásban)
Tehermentes ingatlan.
Építési engedélyek, dokumentumok rendben.

Kinek ajánlom?
Nagycsaládoknak.
Kétgenerációs megoldást keresőknek.
Befektetőknek (a telek felezhető!)
Csendes, természetközeli, de mégis jól megközelíthető otthont keresőknek.
További adatok
Telekterület: 1 700 m2
Kert mérete: -
Erkély mérete: -
Felszereltség: -
Parkolás: garázs
Kilátás: -
Egyéb extrák:  
Hirdető adatai
Hirdető neve: otpip.hu - Érd Bajcsy-Zsilinszky út 160 - OTP Ingatlanpont Iroda
Kapcsolattartó: Orbán Attila
Hirdető telefonszáma: +36307316673
Honlap: -
 
Üzenetet küldhet a hirdetőnek, árajánlatot tehet az ingatlanra:
Az Ön neve:
Az Ön e-mail címe:
Üzenet: