Ingatlan Televízió
Ingatlan Televízió
további hirdetések
adatlap bezárása

Mosonmagyaróvár 
 

Hivatkozási szám: 5854721
Ingatlan adatai
Irányár: 54 000 000 Ft
Típus: lakás (tégla)
Kategória: eladó
Alapterület: 72 m2
Fűtés: gáz (konvektor)
Állapota: felújított
Szobák száma: 2
Építés éve: 1964
Szintek száma: 1
Részletes leírás
Ha olyan otthont keresel, amit saját ízlésedre formálhatsz, ahol a nagy telek miatt szabadon tervezhetsz kertet, teraszt, garázst vagy akár bővítést, akkor ez a ház remek lehetőség.
A 72 m²-es családi ház egy 1000 m²-es, gondozható, széles utcafrontú telken helyezkedik el, a város egyik csendes, jól lakható részén. A ház 1964-ben épült, stabil alapokkal és szép arányú helyiségekkel — a felújítás pedig teret ad annak, hogy pontosan olyan otthont alakíts ki, amilyenre vágysz.
Amit már nem kell kicserélned:
Műanyag, hőszigetelt nyílászárók
Kiépített gázkonvektoros fűtés
Több helyiségben cserépkályha is használható
10 m²-es fedett terasz, ami akár egész éves pihenőrésszé tehető

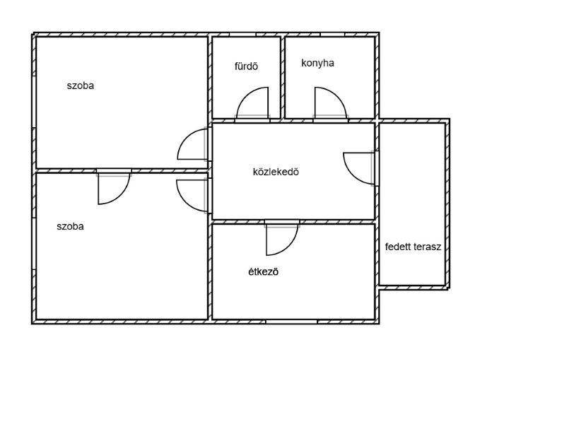
A jelenlegi elosztás (alaprajz alapján):
2 szoba
étkező
közlekedő
konyha
fürdő
fedett terasz

A helyiségek jól rendezhetők, akár egy könnyű átalakítással modern, amerikai konyhás nappali is kialakítható. A nagy telek pedig tovább növeli az értéket: építkezés, melléképület, garázs, kerti tó, veteményes, kutyafuttató — bármi elfér rajta.
Miért jó választás ez az ingatlan a leendő tulajdonosnak?

Felújításnál nincs kompromisszum: teljes mértékben a saját ízlésed szerint alakíthatod.
Nagy és sík telek: ritka ekkora, jól használható telekméret Mosonmagyaróváron.
Energiabarát lehetőségek: szigetelés, új fűtésrendszer, hőszivattyú – mind megvalósítható.
Csendes, nyugodt lakókörnyezet: mégis pár percre a bevásárlási lehetőségektől és a városközponttól.
Kiváló választás befektetésnek is: felújítva magas bérleti értékkel rendelkezik.

Kinek ajánlom?
akik szeretnének egy jó alapállapotú házat saját elképzelés szerint megújítani,
akik fontosnak tartják a nagy telek adta lehetőségeket,
vagy akik befektetési célra keresnek felújítható ingatlant.

Referencia szám: 3348
További adatok
Telekterület: 1 000 m2
Kert mérete: -
Erkély mérete: 10 m2
Felszereltség: -
Parkolás: -
Kilátás: -
Egyéb extrák:  
Hirdető adatai
Hirdető neve: movinghome.hu - Mov-Ing Home
Kapcsolattartó: Gábor Péter
Hirdető telefonszáma: +36309468094
Honlap: -
 
Üzenetet küldhet a hirdetőnek, árajánlatot tehet az ingatlanra:
Az Ön neve:
Az Ön e-mail címe:
Üzenet: