Ingatlan Televízió
Ingatlan Televízió
további hirdetések
adatlap bezárása

Sajóbábony 
Vörösmarty út 

Hivatkozási szám: 5855517
Ingatlan adatai
Irányár: 9 900 000 Ft
Típus: lakás (tégla)
Kategória: eladó
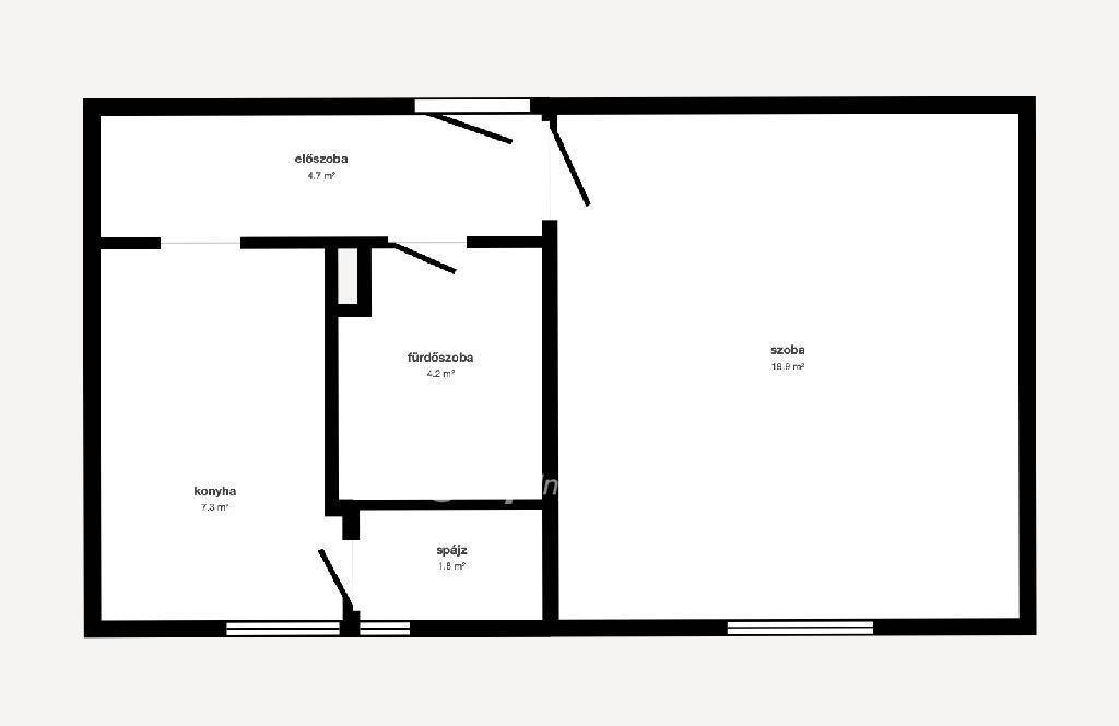
Alapterület: 28 m2
Fűtés: gáz (konvektor)
Állapota: felújítást igényel
Szobák száma: 1
Építés éve: 1955
Szintek száma: 1
Részletes leírás
ELADÓ GARZON SAJÓBÁBONYBAN! Eladó Sajóbábony egyik kedvelt részén a Széchenyi István úton egy 38nm-es nagykonyhás garzonlakás! Fűtése gázkonvektorral, a használati melegvíz gázbojlerral megoldott. Ablakai hőszigeteltek, szúnyoghálóval ellátottak a szobán redőny. Állapota felújítandó, tartozik hozzá két 10nm-es külön pince. Üzlet, buszmegálló egy pernyire. Ideális választás akinek egy olcsó, minimális rezsijű ingatlanra van szüksége. Várom hívását hétvégén is!
OTP Banki hátterünknek köszönhetően finanszírozási igényekben (pl. Otthon Start Hitelprogram, Babaváró, Falusi CSOK, CSOK Plusz, Lakáshitel, Személyi kölcsön stb.), illetve biztosítások tekintetében is díjmentesen, soron kívüli ügyintézéssel segítem ügyfeleim!
Referenciaszám:M318086

Virtuális séta: https://my.matterport.com/show/?m=m9236m5e5fgpm23ew9tc98a7c&views=0&mls=1
További adatok
Telekterület: -
Kert mérete: -
Erkély mérete: -
Felszereltség: -
Parkolás: -
Kilátás: -
Egyéb extrák:  
Hirdető adatai
Hirdető neve: otpip.hu - Miskolc Szemere Bertalan utca 20 - OTP Ingatlanpont Iroda
Kapcsolattartó: Nagy István György
Hirdető telefonszáma: +36-20-449-3075
Honlap: -
 
Üzenetet küldhet a hirdetőnek, árajánlatot tehet az ingatlanra:
Az Ön neve:
Az Ön e-mail címe:
Üzenet: