Ingatlan Televízió
Ingatlan Televízió
további hirdetések
adatlap bezárása

Mád 
Kossuth Lajos utca 

Hivatkozási szám: 5855518
Ingatlan adatai
Irányár: 55 000 000 Ft
Típus: ház
Kategória: eladó
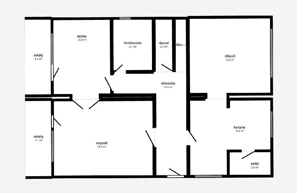
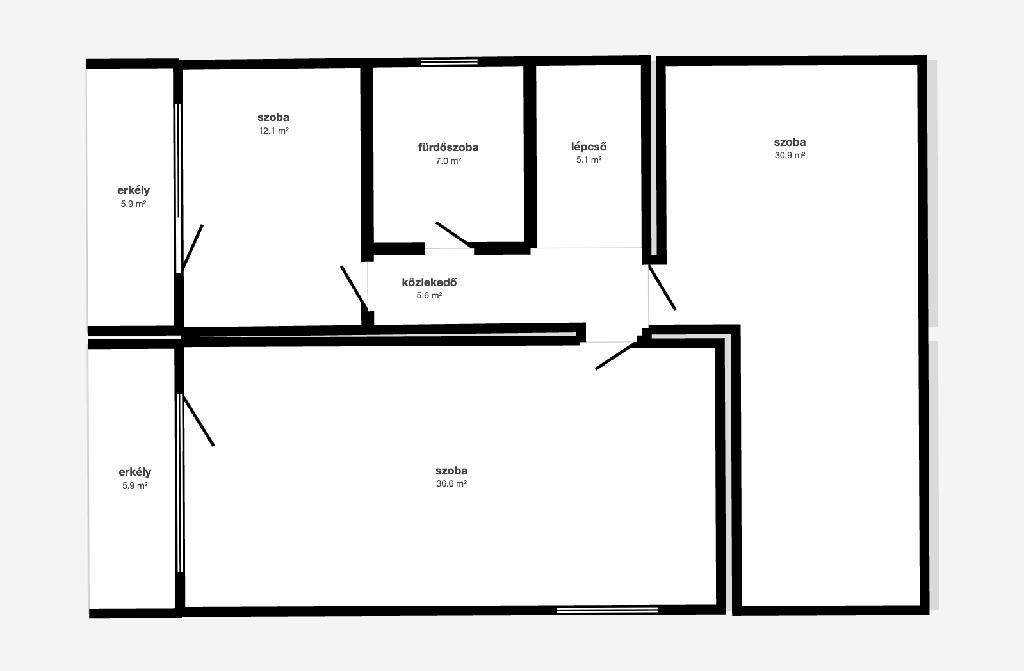
Alapterület: 334 m2
Fűtés: gáz (cirko)
Állapota: felújított
Szobák száma: 4+2
Építés éve: 1986
Szintek száma: 2
Részletes leírás
Mádon nagyon jó lakókörnyezetben 2 szintes családi ház eladó, 2 garázzsal, kazánházzal borospincével. Mád nagyon felkapott település lett Hegyalján. Az ingatlan 756 m2-es telken található, lakóterülete 207 m2. Egyéb lakhatáshoz tartozó területek: pince, 2 db garázs, kazánház, alapterülete összesen 127 m2. Mádon minden megtalálható ami a napi élethez szükséges. Legközelebbi város 10 km-re Szerencs, ahol bevásárló központok, orvosi rendelők, több középiskola, bölcsődék, óvodák található. A ház alkalmas lehet magánszállás, kisebb panzió kialakítására, vagy akár vállalkozás székhelyének, irodának, a jó megközelíthetőség miatt, vagy akár több generációnak is alkalmas lakhatásra. Szomszédok rendesek, csendesek. A ház tehermentes. Érdeklődés esetén kérem az alábbi referencia számra hivatkozzon: M316223
OTP Banki hátterünknek köszönhetően finanszírozási igényekben (pl. Otthon Start Hitelprogram, Babaváró, Falusi CSOK, CSOK Plusz, Lakáshitel, Személyi kölcsön stb.), illetve biztosítások tekintetében is díjmentesen, soron kívüli ügyintézéssel segítem ügyfeleim!
Jöjjön nézzük meg együtt!
További adatok
Telekterület: 756 m2
Kert mérete: -
Erkély mérete: -
Felszereltség: -
Parkolás: lakáshoz van kültéri parkoló
Kilátás: -
Egyéb extrák:  
Hirdető adatai
Hirdető neve: otpip.hu - Miskolc Szemere Bertalan utca 20 - OTP Ingatlanpont Iroda
Kapcsolattartó: Drótos Bence
Hirdető telefonszáma: +36-30-590-4195
Honlap: -
 
Üzenetet küldhet a hirdetőnek, árajánlatot tehet az ingatlanra:
Az Ön neve:
Az Ön e-mail címe:
Üzenet: