Ingatlan Televízió
Ingatlan Televízió
további hirdetések
adatlap bezárása

Tapolca 
 

Hivatkozási szám: 5855564
Ingatlan adatai
Irányár: 133 900 000 Ft
Típus: lakás (tégla)
Kategória: eladó
Alapterület: 574 m2
Fűtés: gáz (cirko)
Állapota: felújított
Szobák száma: 7
Építés éve: 1991
Szintek száma: 2
Részletes leírás
Eladó Veszprém Vármegye Tapolca Családi Ház

Tapolcán eladó egy 574 nm hasznos alapterületű három szintes családi ház.
Az ingatlan összkomfortos teteje Bramac cserép, Állapota jó.
Elrendezése praktikus és napfényes.
Méretéből adódóan számos célra hasznosítható! Kivalló befektetési lehetőség!
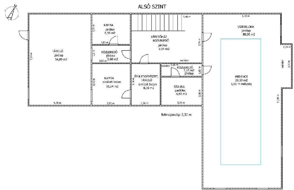
Az alsó szinten található: medence, 12 fős szauna, épületgépészet és sok tárolóhelyiség.
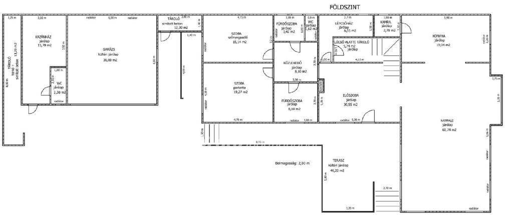
A földszinten található: Nagy méretű fedett terasz, egy nagy méretű napfényes nappali, konyha, előszoba, kettő fürdőszoba, kettő nagy szoba, közlekedő, lépcsőház és tárolók.
Felső szinten: Öt tágas szoba, nagy méretű nappali, kettő fürdőszoba, két erkély, lépcsőház és tároló helység.

Összesen 4 fürdőszoba, 7 szoba, 2 nappali.
Az otthon melegéről vegyes tüzelésű kazán gondoskodik. Valamint a gáz központi is kialakítva.
A nyári hőségről pedig 3 db légkondicionáló gondoskodik. Nappaliban egy szép kandalló is gondoskodik a hangulatról.
Minden helység lapradiátorral felszerelt.

Udvara rendezett folyamatosan karban tartott, nagy része térkövezett.
A ház folytatásában a kazánház új vegyes tüzelésű kazánnal, gázkazánnal és külön mosdóval felszerelt.
A garázs 36 m2-es, fűtött, kiváló állapotú!
Az udvaron felépítésre került egy 56 m2-es pavilon, mely kisebb rendezvények megtartására is alkalmas lehet.
Az ingatlan kamera rendszerrel és riasztóval felszerelt! A kapu elektromos.
Ipari áram bevezetésre került.
Telek mérete: 924 m2.
Tapolcai Malom-Tó öt perc sétával érhető el, így a központ is könnyű sétával megközelíthető.
Ajánlom az ingatlant befektetőknek, vállalkozóknak, mivel a Balaton közelsége adott.
Amennyiben hirdetésem felkeltette az érdeklődését, hívjon bizalommal.

133900000 Ft
Amennyiben az ingatlan felkeltette érdeklődését, esetleg bármivel kapcsolatban kérdése lenne, keressen Bizalommal! Verrasztó Edina: +36703156380

Referencia szám: M312510-ITV
További adatok
Telekterület: 924 m2
Kert mérete: -
Erkély mérete: 46 m2
Felszereltség: -
Parkolás: lakáshoz van kültéri parkoló
Kilátás: -
Egyéb extrák:  
Hirdető adatai
Hirdető neve: otpip.hu - Pápa Eötvös utca 16 - OTP Ingatlanpont Iroda
Kapcsolattartó: Verrasztó Edina Irén
Hirdető telefonszáma: +36703156380
Honlap: -
 
Üzenetet küldhet a hirdetőnek, árajánlatot tehet az ingatlanra:
Az Ön neve:
Az Ön e-mail címe:
Üzenet: