Ingatlan Televízió
Ingatlan Televízió
további hirdetések
adatlap bezárása

Tiszafüred 
 

Hivatkozási szám: 5855703
Ingatlan adatai
Irányár: 35 000 000 Ft
Típus: lakás (tégla)
Kategória: eladó
Alapterület: 72 m2
Fűtés: gáz (konvektor)
Állapota: felújított
Szobák száma: 3
Építés éve: 1995
Szintek száma: -
Részletes leírás
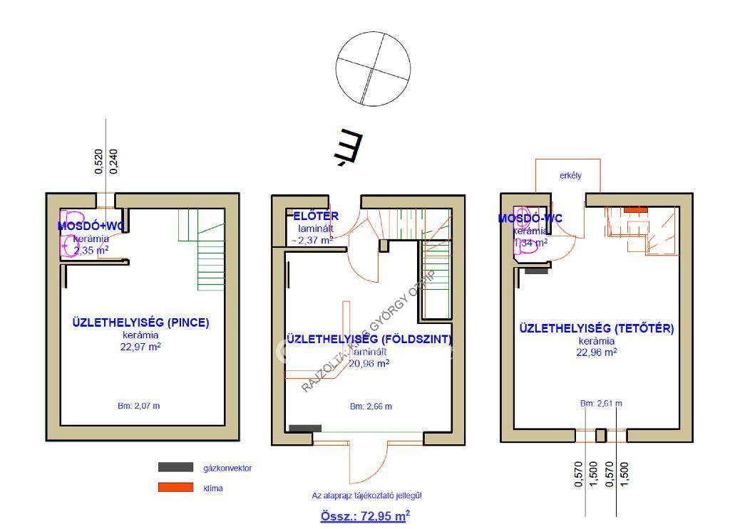
BEFEKTETÉSI LEHETŐSÉGET, VAGY ÜZLETHELYISÉGET KERES TISZAFÜRED BELVÁROSÁBAN??? MEGTALÁLTA!!! KORREKT ÁRON, 1995 KÖRÜL ÉPÜLT, KITŰNŐ ÁLLAPOTBAN, FELÚJÍTOTT, ÖSSZKÖZMŰVES, KOMFORTOS, KLIMATIZÁLT, ÖNÁLLÓ HELYRAJZI SZÁMON (NEM TÁRSASHÁZ!!!), 72,95 M2 HASZNOS ALAPTERÜLETŰ, HÁROMSZINTES KERESKEDELMI ÉPÜLET ELADÓ, A VÁROSKÖZPONTI ÜZLETSORON!!! Az üzlethelyiség folyamatosan bérbe volt adva, a felső szint önállóan is megközelíthető és kiadható (hátsó bejáraton keresztül). Az épület falazata HB30-as tégla, kívül kőporozott homlokzat, duplaüveges műanyag ablakokkal, műanyag ajtókkal, födém vasbetongerendás, tetőn cserépfedés, padlón kerámiaburkolat és laminált padló. Az épületben 1 klíma is található. Az üzlet mögött ingyenes parkolásra van lehetőség! Jelenleg nincs bérlő az ingatlanban. Elvégzett felújítások 2022-ben: burkolatok cseréje, és a külső nyílászárók cseréje műanyagra.
Az ingatlan üzleti szempontból frekventált, kitűnő helyen van, és bármilyen egyéb kereskedelmi, szolgáltatási, egészségügyi, irodai stb. célra alkalmas, vagy alkalmassá tehető, de akár kétegységes apartmanként, lakásként is használható!
Tulajdoni lapja tiszta (per-, teher-, és igénymentes)!!!
Az ingatlan esetleges banki finanszírozása előkészítését díjmentesen vállaljuk.
Helyiségek: földszint: üzlettér, előtér-lépcső (23,33 m2); tetőtér: üzlettér, WC-mosdó (25,32 m2); tetőtér: üzlettér, WC-mosdó (24,3 m2).
Közművek: víz, villany, gáz, szennyvíz.
Fűtés: gázkonvektor, klíma.
Melegvíz: elektromos vízmelegítő.
Telek területe, amelyen önállóan elhelyezkedik az épület az üzletsoron: 36 m2 (üzlet megnevezéssel).
Közelben: belvárosi üzletek, szolgáltatások, iskola, Fő u., patika, művelődési ház, ügyvédek stb.
Tiszafüred és Poroszló között 2020-ban készült el a kerékpárút, ezáltal teljesen körbe lehet kerékpározni a Tisza-tavat, a kerékpárút e telek előtti gátszakasszal is össze van kötve tovább Tiszacsege irányába. A távolsági busz és vonatközlekedés kiváló a településen (pályaudvarok), a város közúti megközelíthetősége szintén, 33-as, 34-es főút, M3-as autópálya 30 km-re (25 perc). Tiszafüred tisza-tavi kisváros, a Tisza-tó fővárosa, idegenforgalmi és térségi központ a Hortobágy kapujában, igen széleskörű infrastrukturális ellátottsággal: bölcsőde, óvoda, általános iskolák, gimnázium, szakközépiskola, szakmunkásképző, gyógyszertárak, nagy áruházak (TESCO, LIDL, SPAR, Penny), szakorvosi ellátások, fizioterápiás szolgáltatások, benzinkutak (MOL, SHELL, OIL), hivatalok, járási hivatal, okmányiroda, rövidesen megújuló termálstrand, kiváló szabadvizi strand, kerékpáros centrum, kitűnő éttermek, szolgáltatások, közeli nagyobb városok Eger (50 km), Debrecen (67 km), Karcag (40 km), de Budapest is 150 km-re (1,5 óra), szomszédos Poroszlón Ökocentrum.
Amennyiben hirdetésem felkeltette érdeklődését, keressen bizalommal bármikor, lehetőleg a +36 30 299 74 16 telefonszámon, ha nem tudom azonnal felvenni, visszahívom, ha a számát kijelzi. További kérdéseire is készséggel válaszolok. A tiszafüredi OTP Ingatlanpont és OTP Pénzügyi Pont teljes körű ügyintézéssel áll az eladók és a vevők rendelkezésére!!! A kínálatunkból választott ingatlan finanszírozásához kedvezményes hitelkonstrukciókat kínálunk! Az adásvételi szerződés megkötéséhez - igény szerint - megbízható ügyvédi közreműködést biztosítunk, és segítséget nyújtunk az adásvételhez kapcsolódó ügyek intézéséhez, hiteligényléshez teljes körűen (igazolások igénylése, nyomtatványok kitöltése, benyújtása, kérelem gondozása stb.).
Irányár: 35 millió Ft
Referenciaszám: M293332
További adatok
Telekterület: -
Kert mérete: -
Erkély mérete: -
Felszereltség: -
Parkolás: lakáshoz van kültéri parkoló
Kilátás: -
Egyéb extrák:  
Hirdető adatai
Hirdető neve: otpip.hu - Tiszafüred Fő utca 29 - OTP Ingatlanpont Iroda
Kapcsolattartó: Kiss György
Hirdető telefonszáma: +36-30-299-7416
Honlap: -
 
Üzenetet küldhet a hirdetőnek, árajánlatot tehet az ingatlanra:
Az Ön neve:
Az Ön e-mail címe:
Üzenet: