Ingatlan Televízió
Ingatlan Televízió
további hirdetések
adatlap bezárása

Budapest, XIX.kerület 
 

Hivatkozási szám: 5855894
Ingatlan adatai
Irányár: 74 900 000 Ft
Típus: lakás (tégla)
Kategória: eladó
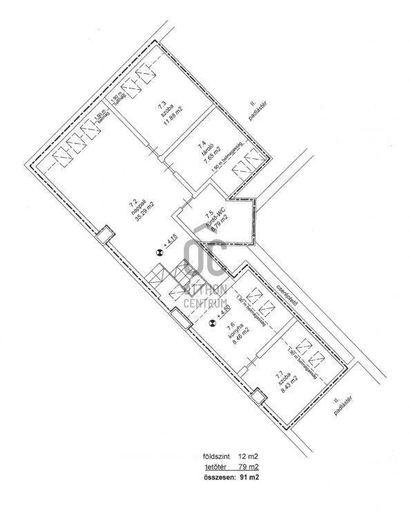
Alapterület: 91 m2
Fűtés: gáz (cirko)
Állapota: felújított
Szobák száma: 4
Építés éve: 1970
Szintek száma: 1
Részletes leírás
Eladásra kínálunk egy különleges hangulatú, napfényes tetőtéri lakást Budapest XIX. kerületében.
Az ingatlan egy 2001-ben beépített tetőtérben helyezkedik el, önálló albetéttel rendelkezik, per- és tehermentes.

A lakás világos, tágas terekkel rendelkezik, melyet a nagy nappali és a jól átgondolt elosztás tesz igazán otthonossá.
A ház rendezett, igényes lakóközösséggel bír.

A lokáció kimagasló infrastruktúrával rendelkezik: pár perc sétára megtalálható minden, ami a mindennapokhoz szükséges — piac, LIDL, Spar, SHOPMARK, KÖKI Terminál, orvosi rendelő, óvoda, iskola és parkok.
A tömegközlekedés kiváló: villamos-, busz- és metrómegálló is rövid sétatávolságra elérhető.
További adatok
Telekterület: -
Kert mérete: -
Erkély mérete: -
Felszereltség: -
Parkolás: -
Kilátás: -
Egyéb extrák:  
Hirdető adatai
Hirdető neve: oc.hu - XX. kerület - Török Flóris utca
Kapcsolattartó: Váradi Márton
Hirdető telefonszáma: +36704657036
Honlap: -
 
Üzenetet küldhet a hirdetőnek, árajánlatot tehet az ingatlanra:
Az Ön neve:
Az Ön e-mail címe:
Üzenet: