Ingatlan Televízió
Ingatlan Televízió
további hirdetések
adatlap bezárása

Nyársapát 
 

Hivatkozási szám: 5856740
Ingatlan adatai
Irányár: 47 900 000 Ft
Típus: ház
Kategória: eladó
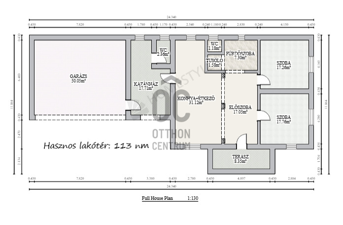
Alapterület: 113 m2
Fűtés: gáz (cirko)
Állapota: -
Szobák száma: 3
Építés éve: 1970
Szintek száma: -
Részletes leírás
Eladásra kínálok Nyársapát csendes részén egy szerkezetileg jól megépített, felújított családi házat!

Az ingatlan téglából épült 1970-ben, és 1217 m² telken helyezkedik el.
Az épület 2024-ben teljes körű felújítást kapott, melynek során kicserélték a teljes villany hálózatot, új burkolatokat kaptak a helyiségek.
A nappaliban egy 5.3 kw inverteres, hűtő-fűtő funkcióval ellátott klíma biztosítja a kellemes hőmérsékletet.
Új bejárati ajtó, és új műanyag nyílászárók kerültek behelyezésre az utcafront felöli szobáknál.
A nappaliban régi de jó állapotú fa nyílászáró található, az ablakok redőnyösek.
A korszerűsítés során új fűtésrendszert alakítottak ki.

HASZNOS LAKÓTÉR 113 m²
- kettő külön nyíló szoba
- nappali
- konyha+étkező
- fürdőszoba+WC
- előszoba

A főépületből átjárható a kazánház, ahol egy WC+kézmosó is kialakításra került.
Az ingatlanhoz tartozik egy 50 m² dupla garázs, ahonnan a kazánházon keresztül a konyha könnyen megközelíthető.
A szépen gondozott, rendezett telken egy hangulatos kis tó, fúrt kút, az udvar hátsó részén ólak, és tárolók találhatóak.

INGATLAN ELHELYEZKEDÉSE
Iskola, élelmiszerbolt, Polgármesteri Hivatal, Művelődési központ, pizzéria 500 méteren belül, gyalogosan is könnyen megközelíthető.

MIÉRT AJÁNLOM A FIGYELMÉBE?
- nem kell a felújítással bajlódnia
- jelenlegi állapotában azonnal költözhető
- alapvetően csendes, nyugodt, szép környéken helyezkedik el, zöldövezet mellett
- per- és tehermentes ingatlan

Amennyiben megtetszett Önnek ez a harmonikus családi ház, várom megtisztelő hívását az ország legismertebb ingatlanközvetítő hálózat tagjaként.
Elérhető vagyok a hét minden napján.
Érdemes tudni, hogy az Otthon Centrum több banknak is az egyik legnagyobb ügyfele, ezért nálunk kedvezőbb konstrukciókkal tud lakáshitelhez jutni, rövidebb időn belül!
A hitelközvetítésünk ingyenes!

#Nyársapát #kettőszoba+nappali #központifűtés #113m² #klíma #duplagarázs #tégla

Ez az ingatlan a \\\"Felező csomag\\\" megbízási portfólióhoz tartozik. Részletek az Otthon Centrum weboldalán.
További adatok
Telekterület: 1 463 m2
Kert mérete: 1 463 m2
Erkély mérete: 8 m2
Felszereltség: -
Parkolás: -
Kilátás: -
Egyéb extrák:  
Hirdető adatai
Hirdető neve: Otthon Centrum
Kapcsolattartó: Kállai Rózsa
Hirdető telefonszáma: +36 70 412 4131
Honlap: -
 
Üzenetet küldhet a hirdetőnek, árajánlatot tehet az ingatlanra:
Az Ön neve:
Az Ön e-mail címe:
Üzenet: