Ingatlan Televízió
Ingatlan Televízió
további hirdetések
adatlap bezárása

Siófok 
 

Hivatkozási szám: 5856766
Ingatlan adatai
Irányár: 144 000 000 Ft
Típus: lakás (tégla)
Kategória: eladó
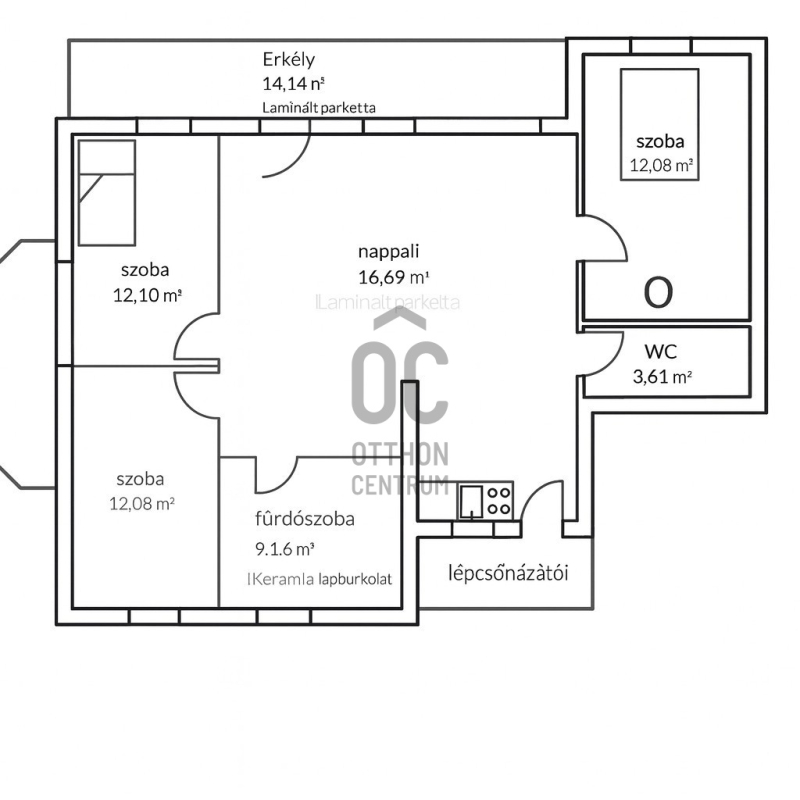
Alapterület: 114 m2
Fűtés: gáz (cirko)
Állapota: -
Szobák száma: 4
Építés éve: 2008
Szintek száma: -
Részletes leírás
50 MÉTERRE A BALATONTÓL – Egész évben használható, lakóingatlan Siófok Aranypartján!

Az Aranypart egyik különleges lakóingatlana várja új tulajdonosát! Miért különleges? 3 külön nyíló hálószoba a tágas amerikai konyhás nappaliból. Két erkély. Saját medence a társasház 10 lakásának. A Balaton, Arany parti szabad strand mindössze pár lépésre. Nem csak strandolásra, kényelmes sétára a kiépített sétányon. A környék pedig egész évben élhető, igényes környezetet biztosít.

Főbb jellemzők
114 m² lakótér – tágas nappali, + 3 külön nyíló hálószoba, tágas, kádas fürdőszoba, külön zuhanyzós fürdőszoba, mindkettőben toalett. Hatalmas gardrób szekrények.
2 kényelmes erkély
Cirkó fűtés, + légkondicionáló – ideális állandó lakhatáshoz
2 saját parkolóhely zárt udvaron, mindig van parkolóhely a lépcsőházhoz közel.
10 lakásos társasház – csendes, barátságos lakóközösség.

Lakóingatlan (lakás) besorolású ingatlan, könnyen hitelezhető.

Kiemelt előny:
teljes bútorzat a vételárban
2 gépkocsi beálló a vételárben
saját medence a társasház udvarán! Gyermekes családok számára biztonságos, jól átlátható környezet. Ideális hely a kicsiknek a vízhez szokni, játszani, barátkozni. A felnőtteknek pedig tökéletes lazítási lehetőség a nyári napokon. A Balaton után vagy helyett kiváló alternatíva – nincs tömeg, nincs zsúfoltság.
Az Aranyparti ingatlanok között rendkívül ritka, hogy ilyen minőségi, saját használatú medence álljon a lakók rendelkezésére.

Kinek ideális?
Családoknak, akik biztonságos, mégis víz közelben lévő otthont keresnek.
Olyan tulajdonosoknak, akik egész évben igényes környezetben szeretnének élni
Befektetőknek, akik értékálló, kiemelt lokációjú lakást keresnek.

Az ingatlant az első tulajdonostól figyelembe véve, csak családosok és nyaralásra használták. Nem hasznosították rövid vagy hosszú távú kiadásra. A lakás mind műszakilag, mind esztétikailag megkímélt, karbantartott állapotban van.


































































































#balaton, #balatonpart, #balatonilakas, #balatoniingatlan, #balatonaranypart, #siofok, #siofokaranypart, #siofokingatlan, #balatonilakás, #csaladbarat, #csaladinagy, #3haloszoba,
#medencéslakás, #gyerekbarat, #sajatmedence, #duplaerkely, #2parkolo, #futottmedence, #klimaslakas, #amerikaikonyha
További adatok
Telekterület: -
Kert mérete: -
Erkély mérete: 20 m2
Felszereltség: -
Parkolás: -
Kilátás: udvari
Egyéb extrák:  
Hirdető adatai
Hirdető neve: Otthon Centrum
Kapcsolattartó: Dienes László
Hirdető telefonszáma: +36 70 388 5086
Honlap: -
 
Üzenetet küldhet a hirdetőnek, árajánlatot tehet az ingatlanra:
Az Ön neve:
Az Ön e-mail címe:
Üzenet: