Ingatlan Televízió
Ingatlan Televízió
további hirdetések
adatlap bezárása

Csongrád 
 

Hivatkozási szám: 5856991
Ingatlan adatai
Irányár: 23 000 000 Ft
Típus: lakás (tégla)
Kategória: eladó
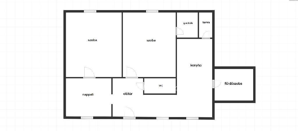
Alapterület: 81 m2
Fűtés: gáz (konvektor)
Állapota: felújítást igényel
Szobák száma: 3
Építés éve: 1960
Szintek száma: 1
Részletes leírás
*** CSAK AZ OTP INGATLANPONT KÍNÁLATÁBAN! *** Eladó Csongrád központjában egy lehetőségekben gazdag, 81 nm-es felújítandó lakás, mely ideális otthont kínál mindazoknak, akik saját ízlésük szerint szeretnék kialakítani új otthonukat. Az ingatlanban két világos szoba, tágas gardrób, praktikus konyha, kényelmes nappali, fürdőszoba, WC és kamra található. A felújítás már elkezdődött: az összes nyílászáró műanyagra cserélve, a villanyhálózat modernizálva lett, így egy jó alap áll rendelkezésre a további fejlesztésekhez. Fűtése jelenleg gázkonvektorral biztosított, a melegvízről pedig okos bojler gondoskodik, ami kényelmes és takarékos megoldás. A telek osztatlan közös tulajdon. Egy kis ráfordítással fantasztikus otthont varázsolhat belőle, akár saját ízlése szerint. Ne hagyja ki ezt a remek lehetőséget, hogy saját álomlakását valósítsa meg Csongrádon! Legújabb szolgáltatásként ajánlom minden kedves ügyfelem részére az OTP Bank által közvetített Babaváró, CSOK PLUSZ, Otthon Start Hitelprogram vagy egyéb kölcsönök intézését. Számos konstrukció közül választhatnak. Irodáink Szentes, Petőfi utca 12. A buszmegálló felől, és Csongrád, Fő utca 54. szám alatt várja a személyes érdeklődőket. ***VÁLASSZUK KI EGYÜTT AZ ÖNNEK LEGMEGFELELŐBB AJÁNLATOT! BANKI SORBAN ÁLLÁS NÉLKÜL! Az adásvételi szerződés megkötéséhez igény szerint megbízható ügyvédi közreműködést biztosítunk, és segítséget nyújtunk az adásvételhez kapcsolódó ügyek intézésénél.

Referencia szám: M319127
További adatok
Telekterület: -
Kert mérete: -
Erkély mérete: -
Felszereltség: -
Parkolás: -
Kilátás: -
Egyéb extrák:  
Hirdető adatai
Hirdető neve: otpip.hu - Csongrád Fő utca 54 - OTP Ingatlanpont Iroda
Kapcsolattartó: Gyenes Martin
Hirdető telefonszáma: +36-30-375-5815
Honlap: -
 
Üzenetet küldhet a hirdetőnek, árajánlatot tehet az ingatlanra:
Az Ön neve:
Az Ön e-mail címe:
Üzenet: