Ingatlan Televízió
Ingatlan Televízió
további hirdetések
adatlap bezárása

Budapest, II.kerület 
 

Hivatkozási szám: 5857097
Ingatlan adatai
Irányár: 180 000 000 Ft
Típus: lakás (tégla)
Kategória: eladó
Alapterület: 83 m2
Fűtés: gáz (cirko)
Állapota: felújított
Szobák száma: 3+1
Építés éve: 1910
Szintek száma: 1
Részletes leírás
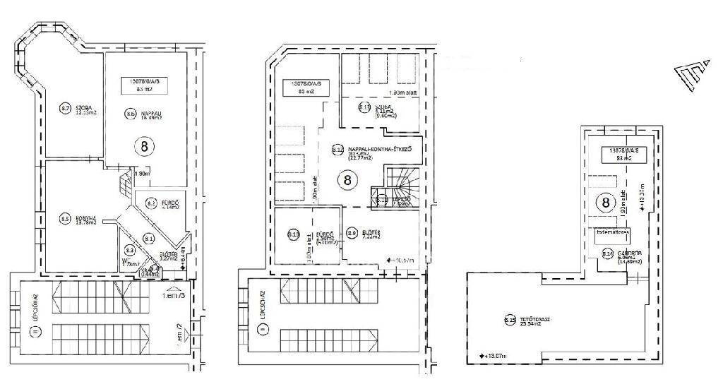
Budapest II. kerület, Rózsadomb alja, 95 m2 lakás eladó. Az ingatlan Buda közkedvelt, a Körszálló és a Duna közötti részén, csendes nyugodt környezetben helyezkedik el. A bruttó 116 m2-es, belső 3 szintes ingatlan két önálló, lépcsőházból nyíló, saját bejárattal rendelkező lakása egyedi, ideális lehetőség akár 2 generáció együttélésére is. Az 50 m2-es első emeleti lakásához tartozik egy 27 m2-es tetőtéri lakás, egy padlástéri 6 m2-es gardrób, illetve egy 24 m2-es tetőterasz, ahonnan a Körszállóra, illetve a Budai Vár Nemzeti Levéltárára nyílik panorámás kilátás. Az ingatlan értékét tovább növeli egy 6 m2-es alvógaléria. A 7 lakásos társasháznak saját kertje, a kerten belül 4 gépkocsi beállója, valamint egy közös pincéje is van elkülönített, saját használatú résszel. A lakás fűtését és melegvíz ellátását cirko gázkazán biztosítja, amit két hűtő-fűtő klíma egészít ki. Busz- és villamosmegálló a közelben, a Városmajor, a Széll Kálmán tér, a Mammut bevásárlóközpont, a Fény utcai piac és a Millenáris park pedig 5-10 perc sétával elérhető. Kiváló lehetőség állandó lakhatásra vagy befektetésként kiadásra. Bővebb információért keressen telefonon!

Referencia szám: M319582
További adatok
Telekterület: -
Kert mérete: -
Erkély mérete: 24 m2
Felszereltség: -
Parkolás: lakáshoz van kültéri parkoló
Kilátás: -
Egyéb extrák:  
Hirdető adatai
Hirdető neve: otpip.hu - Siófok Sió utca 10 - OTP Ingatlanpont Iroda
Kapcsolattartó: Zsitnyányi Ágnes
Hirdető telefonszáma: +36-70-316-3864
Honlap: -
 
Üzenetet küldhet a hirdetőnek, árajánlatot tehet az ingatlanra:
Az Ön neve:
Az Ön e-mail címe:
Üzenet: