Ingatlan Televízió
Ingatlan Televízió
további hirdetések
adatlap bezárása

Budapest, VII.kerület 
Madách Imre tér 

Hivatkozási szám: 5857116
Ingatlan adatai
Irányár: 124 000 000 Ft
Típus: lakás (tégla)
Kategória: eladó
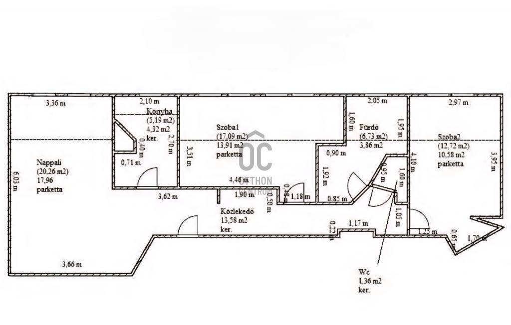
Alapterület: 65 m2
Fűtés: házközponti egyedi méréssel
Állapota: felújított
Szobák száma: 3
Építés éve: 2005
Szintek száma: 1
Részletes leírás
Budapest egyik legkeresettebb részén, a Gozsdu Udvar közvetlen közelében kínálunk megvételre egy igényesen felújított, modern kialakítású, világos lakást, amely tökéletes választás akár saját otthonnak, akár befektetésnek.

A 78 m² bruttó (65 m² nettó) alapterületű ingatlan átgondolt elrendezéssel rendelkezik: két kényelmes hálószoba, egy tágas, nagy ablakfelületekkel rendelkező nappali, zuhanyzós fürdőszoba és külön mellékhelyiség biztosítja a komfortos mindennapokat. A lakás minden helyiségéből panorámás városi kilátás tárul elénk, a természetes fény egész nap meghatározza a belső tereket.

A felújítás során kizárólag új, még nem használt bútorok és gépek kerültek beépítésre. A modern konyha teljesen felszerelt, mosogatógéppel ellátott, a szobák légkondicionáltak, így a lakás minden évszakban ideális környezetet nyújt munkához, tanuláshoz és pihenéshez.

Elhelyezkedés és infrastruktúra:
A Gozsdu Udvar, éttermek, kávézók, üzletek és szórakozási lehetőségek néhány lépésre találhatók, a környék kiváló közlekedése révén Budapest bármely pontja gyorsan elérhető. Igény esetén parkolóhely bérelhető a ház teremgarázsában.

További előnyök:
– Azonnal költözhető állapot
– Kiemelkedő befektetési potenciállal rendelkezik
– Teljes berendezéssel, kiegészítőkkel együtt eladó

Ez a lakás ritka lehetőség a belvárosi ingatlanpiacon, ahol a minőség, az elhelyezkedés és a funkcionalitás egyszerre érvényesül.

Érdeklődjön most, és tekintse meg személyesen ezt a kivételes adottságú belvárosi ingatlant!
További adatok
Telekterület: -
Kert mérete: -
Erkély mérete: -
Felszereltség: -
Parkolás: utcán, közterületen
Kilátás: -
Egyéb extrák:  
Hirdető adatai
Hirdető neve: oc.hu - VIII. kerület - József körút
Kapcsolattartó: Fekete Dóra Viktória
Hirdető telefonszáma: +36704123431
Honlap: -
 
Üzenetet küldhet a hirdetőnek, árajánlatot tehet az ingatlanra:
Az Ön neve:
Az Ön e-mail címe:
Üzenet: