Ingatlan Televízió
Ingatlan Televízió
további hirdetések
adatlap bezárása

Szeged 
 

Hivatkozási szám: 5857149
Ingatlan adatai
Irányár: 49 900 000 Ft
Típus: lakás (panel)
Kategória: eladó
Alapterület: 53 m2
Fűtés: távfűtés
Állapota: felújított
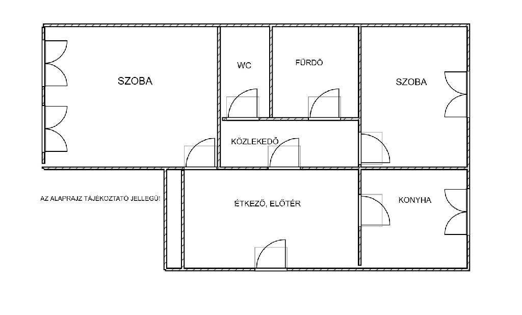
Szobák száma: 2
Építés éve: 1985
Szintek száma: 5
Részletes leírás
Szeged, Felsővárosi 1. emeleti, 2 szoba+étkezős lakás eladó! A lakás közel a belvároshoz, a Tisza-part környékén, cseréptetős házban található, kiváló közlekedéssel, két külön nyíló szobával és étkezővel! A ház panelprogramos, hőszigetelt, nyílászárók cseréje megtörtént. Belsőlegesen némi felújítás ráfér, de most is lakható állapotban van. Minden működik, használható. Az otthon melegét távfűtés biztosítja, hőmennyiségmérővel. Valamint van egy hűtő - fűtő klíma, mely megfelelően temperálja a hőmérsékletet. Rendkívül alacsony a rezsi és a közös költség is alacsony! - olcsón fenntartható lakás. Rendezett lakóközösség, ritkán cserélődnek a lakók, nyugalom van. A Belváros gyalog is pár perc alatt elérhető, a Tisza-part karnyújtásnyira van.
Az ingatlan megvásárlásához kedvező hitel is igényelhető, melynek intézéséhez szakszerű segítség áll a leendő vásárló rendelkezésére. Megtekintés előre egyeztetett időpontban lehetséges.
További adatok
Telekterület: -
Kert mérete: -
Erkély mérete: -
Felszereltség: -
Parkolás: -
Kilátás: -
Egyéb extrák:  
Hirdető adatai
Hirdető neve: otpip.hu - Szeged Széchenyi tér 6 - OTP Ingatlanpont Iroda
Kapcsolattartó: Kalmár Edit Virág
Hirdető telefonszáma: +36-70-942-4398
Honlap: -
 
Üzenetet küldhet a hirdetőnek, árajánlatot tehet az ingatlanra:
Az Ön neve:
Az Ön e-mail címe:
Üzenet: