Ingatlan Televízió
Ingatlan Televízió
további hirdetések
adatlap bezárása

Biharugra 
 

Hivatkozási szám: 5857571
Ingatlan adatai
Irányár: 15 990 000 Ft
Típus: ház
Kategória: eladó
Alapterület: 94 m2
Fűtés: egyéb
Állapota: felújítást igényel
Szobák száma: 3
Építés éve: 1960
Szintek száma: 2
Részletes leírás
Eladásra kínálunk egy 94 m2-es, 3 szobás családi házat Biharugrán!

A családi ház egy csendes és rendezett utcában található egy 1078 m2-es telken.

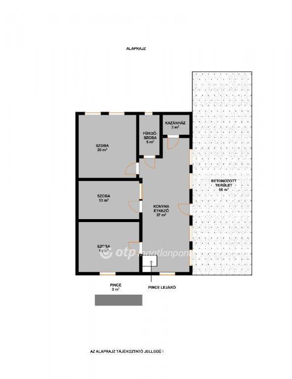
A vegyes falazatú ház felújítása folyamatban van, de már számos fontos korszerűsítés elkészült: kicserélt nyílászárók, új vízvezetékek és villamos hálózat, felújított tetőszerkezet. Elkészültek a belső falak vakolásai, új álmennyezet, új aljzatbeton, a külső homlokzati szigetelés amin rajta a nemesvakolat. A födém összesen kb. 40 cm vastagságban szigetelt, a belső terek befejezése az új tulajdonos igényeire vár. A 66 m2 betonozott terület a ház előtt, alkalmas lehet terasznak, parkolónak vagy egyéb, más célokra is.

Helyiségek:
- Nappali+konyha+étkező: 37 m2
- Szoba: 20 m2
- Szoba: 16 m2
- Szoba: 13 m2
- Fürdőszoba: 5 m2
- Kazánház: 3 m2
- Pince: 3 m2

A hirdetésben tervezett látványképek is meg vannak jelenítve, hogy segítsenek a végleges megjelenés pontosabb elképzelésében!

További információért hívjon bizalommal akár hétvégén is. Megtekintésre telefonos egyeztetés alapján van lehetőség. Kedvezményes kamatozású lakásvásárlási, felújítási hitelek, OTTHON START valamint CSOK és Babaváró ügyintézés az OTP hátterével irodánkban.
További adatok
Telekterület: 1 078 m2
Kert mérete: -
Erkély mérete: -
Felszereltség: -
Parkolás: -
Kilátás: -
Egyéb extrák:  
Hirdető adatai
Hirdető neve: otpip.hu - Debrecen Kürtös utca 8 - OTP Ingatlanpont Iroda
Kapcsolattartó: Mester Tibor
Hirdető telefonszáma: +36-20-806-7007
Honlap: -
 
Üzenetet küldhet a hirdetőnek, árajánlatot tehet az ingatlanra:
Az Ön neve:
Az Ön e-mail címe:
Üzenet: