Ingatlan Televízió
Ingatlan Televízió
további hirdetések
adatlap bezárása

Dunaújváros 
 

Hivatkozási szám: 5857779
Ingatlan adatai
Irányár: 44 000 000 Ft
Típus: lakás (tégla)
Kategória: eladó
Alapterület: 47 m2
Fűtés: távfűtés
Állapota: felújított
Szobák száma: 1+2
Építés éve: 1957
Szintek száma: 1
Részletes leírás
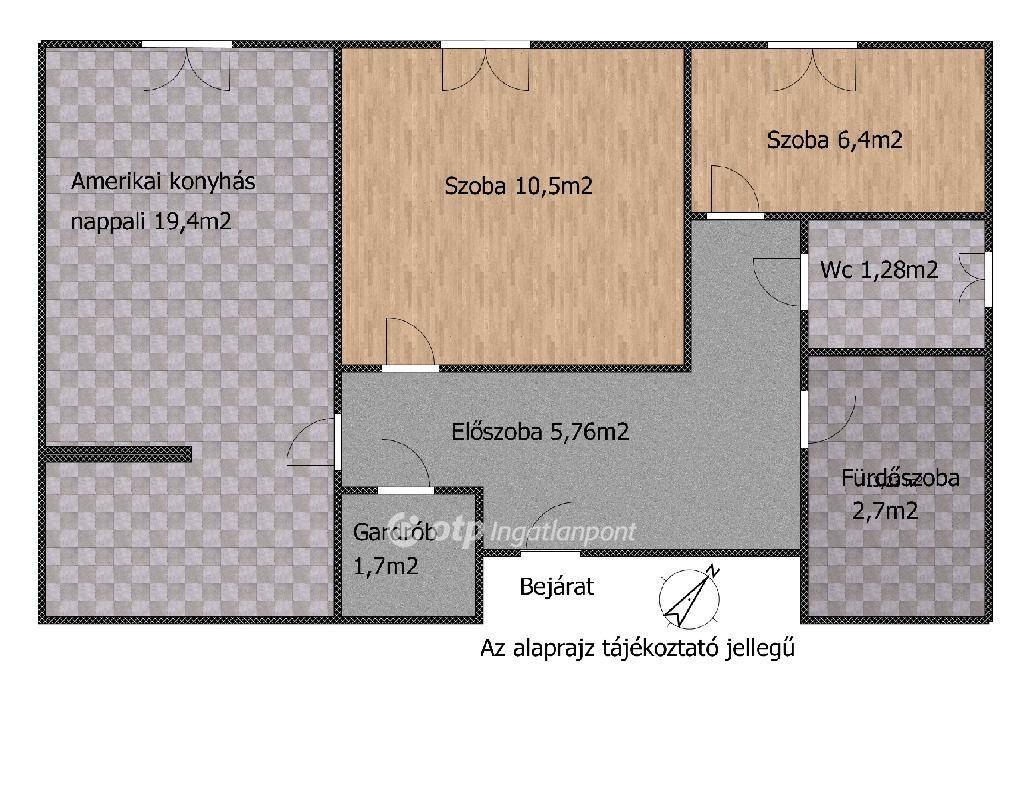
Eladó Dunaújváros központi részén egy 47m2-es 1+2 félszobás amerikai konyhás lakás. Az ingatlan egy műemlék jellegű téglaépület 4. emeletén helyezkedik el, ami kényelmesen lift használatával is megközelíthető. A lakás nagy volmenű felújításon esett át, amely során az elektromos kábelhálózatot, a burkolatokat a vizes helységekben és a szobákban is kicserélték, így a nagyszoba, a fürdőszoba, a mellékhelység és a konyha rész is teljesen új külsőt kapott. Továbbá a lakás kreatív tervezése során amerikai konyhás verziót hoztak létre a legnagyobb szobából, a konyhából pedig félszobát alakítottak ki. A fűtésért egyedi mérővel ellátott radiátorok gondoskodnak, míg a meleg vízért a gardrób helységben felszerelt Ariston bojler a felelős. Csere érettek lettek a nyílászárók is, ezek helyett, 2 rétegű, hőszigetelt ablakok lettek beszerelve. A környék infrastruktúrája lehetővé teszi a kényelmes közlekedést, akár az autót, akár tömegközlekedést részesítik előnyben. Dunaújváros az elmúlt pár évben rengeteg munkahelyet teremt, így az újonnan ideköltözők is hosszú távra tervezhetnek. A környéken megtalálható a legtöbb oktatási intézmény, de a bevásárlási és a kulturális lehetőségek is adottak a városban. A kínálatunkból választott ingatlan finanszírozásához kedvezményes hitel- és lízingkonstrukciókat kínálunk. Az adásvételi szerződés megkötéséhez igény szerint megbízható ügyvédi közreműködést biztosítunk, és segítséget nyújtunk az adásvételhez kapcsolódó ügyek intézéséhez. Amennyiben felkeltettem érdeklődését, keressen bizalommal, akár hétvégén is. Referenciaszám: M319588
További adatok
Telekterület: -
Kert mérete: -
Erkély mérete: -
Felszereltség: -
Parkolás: -
Kilátás: -
Egyéb extrák:  
Hirdető adatai
Hirdető neve: otpip.hu - Szigetszentmiklós Tököli út 19.B - OTP Ingatlanpont Iroda
Kapcsolattartó: Szombay Alfréd
Hirdető telefonszáma: +36306609459
Honlap: -
 
Üzenetet küldhet a hirdetőnek, árajánlatot tehet az ingatlanra:
Az Ön neve:
Az Ön e-mail címe:
Üzenet: