Ingatlan Televízió
Ingatlan Televízió
további hirdetések
adatlap bezárása

Nyíregyháza 
 

Hivatkozási szám: 5857851
Ingatlan adatai
Irányár: 74 900 000 Ft
Típus: lakás (tégla)
Kategória: eladó
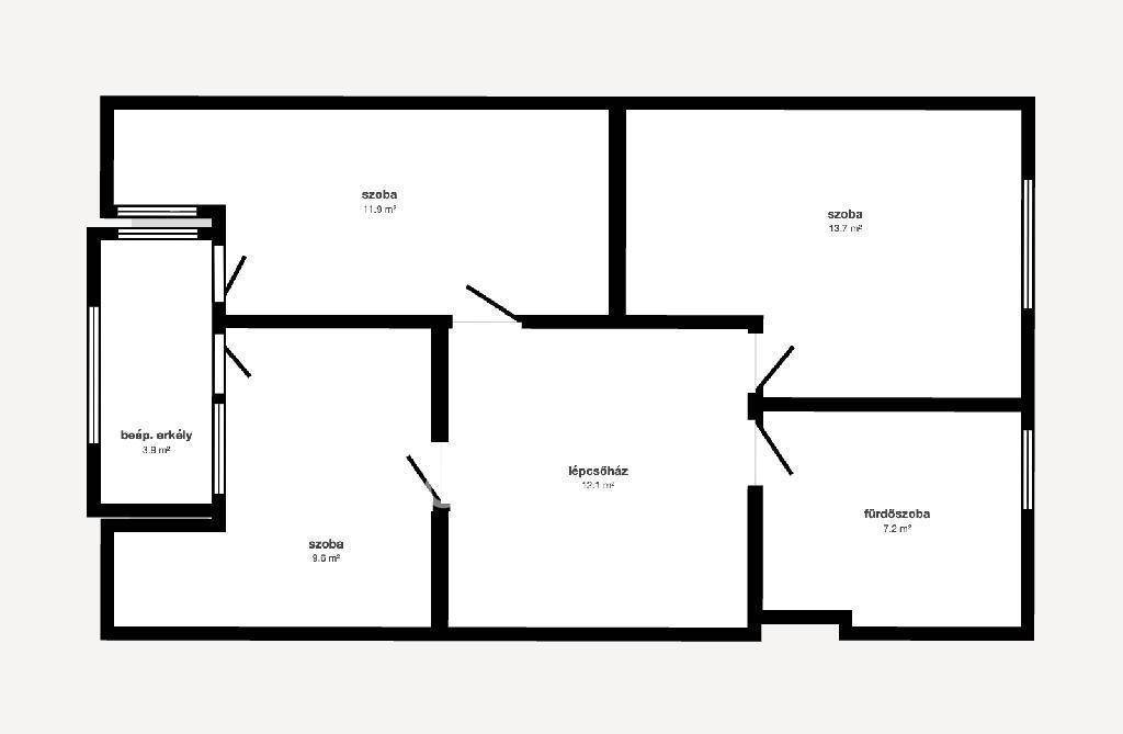
Alapterület: 100 m2
Fűtés: gáz (cirko)
Állapota: felújított
Szobák száma: 5
Építés éve: 1986
Szintek száma: 3
Részletes leírás
Eladó sorházi lakás Korányi-kertváros kedvelt részén, a Sipkay Barna utcában!

Csendes, rendezett és kifejezetten hangulatos utcában található ez a félszinteltolásos, polgári miliőt idéző, rendkívül jól karbantartott sorházi lakás. A házhoz gondozott előkert és bensőséges hátsó kert tartozik, így a nyugalmat és a zöld környezetet egyaránt biztosítja leendő tulajdonosának.

A 5 szoba és 2 fürdőszoba kényelmes életteret kínál akár nagyobb család számára is. A félszinteltolásos kialakítás egyedi, tágas és jól szeparált tereket hoz létre.

A házhoz tartozik egy garázs is.

A környék kifejezetten divatos és keresett, kiváló infrastruktúrával: pár száz méteren belül megtalálható bölcsőde, óvoda, iskola, boltok, valamint orvosi rendelő is ? minden adott a kényelmes mindennapokhoz.

A sóstói erdő gyalog mindössze pár percre található (az erdei tornapálya a google map szerint 1 200 méterre van a háztól) és Sóstó is mindössze pár perc kerékpárút. (Ugyancsak a google map szerint a Vadaspark 3 700 méterre és 13 perc kerékpárútra található).

Kitűnő ár - érték arány és kifogástalan lokáció.

OTP Banki hátterünknek köszönhetően finanszírozási igényekben (pl. Otthon Start Hitelprogram, Babaváró, Falusi CSOK, CSOK Plusz, Lakáshitel, Személyi kölcsön stb.), illetve biztosítások tekintetében is díjmentesen, soron kívüli ügyintézéssel segítem ügyfeleim! Referenciaszám: M318192
További adatok
Telekterület: 350 m2
Kert mérete: -
Erkély mérete: 4 m2
Felszereltség: -
Parkolás: garázs
Kilátás: -
Egyéb extrák:  
Hirdető adatai
Hirdető neve: otpip.hu - Nyíregyháza Bocskai utca 18-20 - OTP Ingatlanpont Iroda
Kapcsolattartó: Kiss Zoltán Bence
Hirdető telefonszáma: +36301813878
Honlap: -
 
Üzenetet küldhet a hirdetőnek, árajánlatot tehet az ingatlanra:
Az Ön neve:
Az Ön e-mail címe:
Üzenet: