Ingatlan Televízió
Ingatlan Televízió
további hirdetések
adatlap bezárása

Feldebrő 
 

Hivatkozási szám: 5857956
Ingatlan adatai
Irányár: 26 000 000 Ft
Típus: lakás (tégla)
Kategória: eladó
Alapterület: 83 m2
Fűtés: gáz (konvektor)
Állapota: felújított
Szobák száma: 2+1
Építés éve: 2001
Szintek száma: 2
Részletes leírás
Szeretne a Mátra alján, egy csendes borvidéki faluban élni? Eladóvá vált Feldebrő egyik legcsendesebb pontján, egy zsákutca végén fekvő, tégla építésű családi ház. Ez az ingatlan a privát szféra és a vidéki nyugalom kedvelőinek ideális választása, ahol a telek természetes határát a kert végében húzódó patakmeder adja.
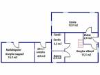
Az ingatlan elosztása (összesen 83,4 m2):
Az épületegyüttes két külön bejáratú egységből áll, ami kiválóan alkalmas generációk együttélésére vagy akár különálló hobbi-lakrész kialakítására:
Főépület: A földszinten konyha-étkező, szoba, fürdőszoba és kamra található. Az emeleten (tetőtérben) két további szoba és egy WC kapott helyet.
Melléképület: 16,5 m2-es külön lakrész, amerikai konyhás nappalival és mosókonyhával.
Felszereltség és kert:
Kényelem: Az ingatlan klímával, valamint elektromos nagykapuval és elektromos garázsajtóval felszerelt.
Gazdálkodás: A kertben termő gyümölcsfák és egy gondozott konyhakert található. Az öntözést saját fúrt kút biztosítja, így a kert fenntartása költséghatékony.
Fűtés: Gázkonvektoros fűtés (a tetőtérben kéményes kivezetéssel).
Lokáció:
Az utca végén való elhelyezkedés garantálja a csendet, miközben minden fontos intézmény (bolt, busz, iskola, orvos) 5 perces sétával elérhető. A házzal szemben fodrászat működik, a kertnek pedig csak egyetlen közvetlen szomszédja van.
Amennyiben felkeltette érdeklődését az ingatlan, jöjjön el és győződjön meg személyesen is a leírtakról! Ingatlanirodánk ügyvédi háttérrel, CSOK, babaváró hitel, valamint kamatkedvezményes hitel ügyintézésével támogatja ügyfelei ingatlanvásárlását! Kérem érdeklődéskor hivatkozzon az M319580 számra.

Várom hívását, akár hétvégén is.

Referencia szám: M319580-ITV
További adatok
Telekterület: 713 m2
Kert mérete: -
Erkély mérete: -
Felszereltség: -
Parkolás: garázs
Kilátás: -
Egyéb extrák:  
Hirdető adatai
Hirdető neve: otpip.hu - Eger Kertész utca 25 - OTP Ingatlanpont Iroda
Kapcsolattartó: Kovácsné Varga Nikolett
Hirdető telefonszáma: +36302471008
Honlap: -
 
Üzenetet küldhet a hirdetőnek, árajánlatot tehet az ingatlanra:
Az Ön neve:
Az Ön e-mail címe:
Üzenet: