Ingatlan Televízió
Ingatlan Televízió
további hirdetések
adatlap bezárása

Alsózsolca 
Csavargyári utca 

Hivatkozási szám: 5859329
Ingatlan adatai
Irányár: 570 000 000 Ft
Típus: lakás (tégla)
Kategória: eladó
Alapterület: 2 000 m2
Fűtés: gáz
Állapota: felújított
Szobák száma: -
Építés éve: 1998
Szintek száma: -
Részletes leírás
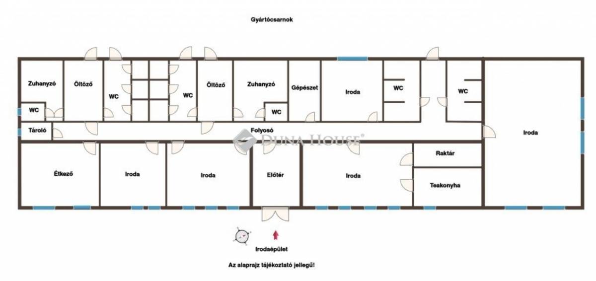
lsózsolcai ipari parkban, gyártás beszüntetése után a tulajdonos értékesíteni kívánja tulajdonában álló ipari létesítményt.

A telek mérete 15000m2, melyből kb 10000 van jelenleg körbekerítve és hasznosítva, ám az szabad döntés alapján bármikor módosítható.
A rajta található felépítmény 3 részből tevődik össze, annak ellenére, hogy összeépített.
- 300m2-es irodarész, mely tégla falazatú, műanyag nyílászárókkal rendelkezik, irodák, öltözők és egyéb szociális helyiségek kaptak helyet benne
- 800m2-es fűtött gyártócsarnok, mely daruzott, padlója jó állapotú, nagy teherbírású acélhajas beton
- 800m2-es raktár

Az udvaron jelenleg is terhelhető burkolattal rendelkezik, targoncás és kamionforgalom számára, valamint az irodaépület előtt parkoló biztosít helyet a személygépjárművek részére.

2017-ben a jelenlegi tulajdonos teljeskörűen felújította, ekkor került be az új 34kW-os gázkazán, a műanyag nyílászárók, stb.

Külön előnye, hogy dedikált transzformátor állomásról kapja az elektromos áramot (3x1000A), mely kisfeszültségű 400V, így nem vonatkoznak rá a nagyfeszültség üzemeltetési feltételei, illetve kötelezően alkalmazandó szakember személye is megspórolható.

Gáz és víz is iparilag méretezett, minden teljeskörűen engedélyeztetett és tervezett kialakítású.

Az ipari parkban számos országos/multinacionális cég jelen van, adott telephely remek fekvéssel rendelkezik, 2 irányból is megközelíthető, autópálya közelében.

Állapotát tekintve azonnal munkára fogható, belakható - a gyártás 2 hónapja szűnt meg, az állagmegóvásra fordítanak és rendben tartják.

Továbbá rendelkezik egy jóváhagyott építési engedéllyel is, egy 1000m2-es ponyva raktár tekintetében, mely a tervek szerint bármikor megvalósítható.

A hirdetési ár nettó ár, azt további 27% ÁFA terheli.
További adatok
Telekterület: -
Kert mérete: -
Erkély mérete: -
Felszereltség: -
Parkolás: lakáshoz van kültéri parkoló
Kilátás: -
Egyéb extrák:  
Hirdető adatai
Hirdető neve: dh.hu - Miskolc, Centrum
Kapcsolattartó: Szőke Szabolcs
Hirdető telefonszáma: +36306703219
Honlap: -
 
Üzenetet küldhet a hirdetőnek, árajánlatot tehet az ingatlanra:
Az Ön neve:
Az Ön e-mail címe:
Üzenet: