Ingatlan Televízió
Ingatlan Televízió
további hirdetések
adatlap bezárása

Gyöngyös 
 

Hivatkozási szám: 5859815
Ingatlan adatai
Irányár: 149 900 000 Ft
Típus: kereskedelmi/ipari ingatlan
Kategória: eladó
Alapterület: 242 m2
Fűtés: -
Állapota: -
Szobák száma: -
Építés éve: -
Szintek száma: -
Részletes leírás
PRÉMIUM BEFEKTETÉSI LEHETŐSÉG GYÖNGYÖS BELVÁROSÁBAN – AZ INGATLAN, AMELY DOLGOZIK ÖN HELYETT
Gyöngyös szívében működő üzletház – biztos alapokon.

Gyöngyös belvárosában, frekventált, nagy forgalmú, kiválóan látható és könnyen megközelíthető helyen kínálunk eladásra egy háromszintes, összközműves, klímatizált, sarok üzletházat, amely stabil hozamot, és sokoldalú hasznosítási lehetőséget biztosít.

Főbb adatok
- Irányár: 149.900.000 Ft
- 3 szint + kerthelyiség
- 242 nm telek
- 367 nm hasznos terület összesen
- 13 szoba
- kő+tégla építésű
- Összközműves
- Klímatizált
- Forgalmas, jól látható elhelyezkedés
- Hasznosítás szintenként
- Tetőtéren műanyag, alsó szinten fa nyílászárók
- Fűtés egyedi mérőórákkal, cirkó gázkazán

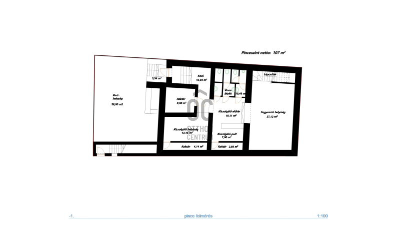
Pinceszint:
– Korábban, kerthelyiséggel rendelkező söröző üzemelt
– Vendéglátásra kiváló adottságok
- Utcafronti bejárat
- WC: 2 db

Földszint:
– 4 különálló üzlethelyiség
– Ebből 3 utcafronti, jelenleg is bérlőkkel működik
– A 4. üzlethelyiséget a tulajdonos használja
– A meglévő bérlők hosszú távon maradnának, a bérleti jogviszony fenntartható
- WC: 3 db + az egyiknél zuhany lehetőség

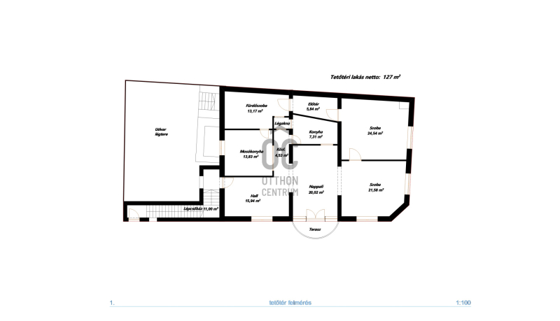
Tetőtér:
- A tetőtér vendéglátóipari vállalkozás működtetésére alkalmas kialakítással rendelkezik, így étterem, kávézó, bár vagy gasztro-koncepció is megvalósítható
- Ugyanakkor kiválóan átalakítható jóga-, meditációs-, mozgás- vagy egészségmegőrző térként is
– Lakásként is funkcionálhat kisebb átalakítással
- WC: 3 db

Befektetési előnyök
- Az ingatlan jelenleg is bevételt termel
- Kiváló hasznosítási lehetőség: üzletek, vendéglátás (kávéház, cukrászda, teaház, étterem....), irodaház, szolgáltató központ, különálló irodaegységek, szolgáltató tevékenységekhez, fitness-wellnes, egészségmegőrző és terápiás tevékenységek
- Belvárosi elhelyezkedés, folyamatos gyalogos és autós forgalom
- Stabil, keresett lokáció hosszú távra

Ez az ingatlan nem csupán egy épület, hanem egy üzleti alap, amely azonnal működik, és tovább fejleszthető.

Belvárosi jelenlét. Folyamatos forgalom. Biztos hozam.

Finanszírozás és jogi háttér

Hitel, támogatás? Segítünk!
Az Otthon Centrum egyedülálló, bankfüggetlen hitelügyintézése
18 bank ajánlatát hasonlítjuk össze díjmentesen – minden egy helyen.

Adásvétel esetén ügyvédünk végigkíséri a teljes folyamatot a biztonságos és gördülékeny ügyintézés érdekében.

Érdeklődj bizalommal, és tekintsd meg személyesen ezt a kivételes befektetési lehetőséget!

#eladóüzletház#befektetésiingatlan#gyöngyös#belváros#üzletiingatlan#hozamtermelő#bérlőkkel#vendéglátás#irodaház#ingatlanbefektetés#prémiumingatlan#otthoncentrum
További adatok
Telekterület: -
Kert mérete: -
Erkély mérete: -
Felszereltség: -
Parkolás: -
Kilátás: -
Egyéb extrák:  
Hirdető adatai
Hirdető neve: Otthon Centrum
Kapcsolattartó: Kósa Edit
Hirdető telefonszáma: +36 70 716 9201
Honlap: -
 
Üzenetet küldhet a hirdetőnek, árajánlatot tehet az ingatlanra:
Az Ön neve:
Az Ön e-mail címe:
Üzenet: