Ingatlan Televízió
Ingatlan Televízió
további hirdetések
adatlap bezárása

Zagyvaszántó 
 

Hivatkozási szám: 5859851
Ingatlan adatai
Irányár: 12 300 000 Ft
Típus: ház
Kategória: eladó
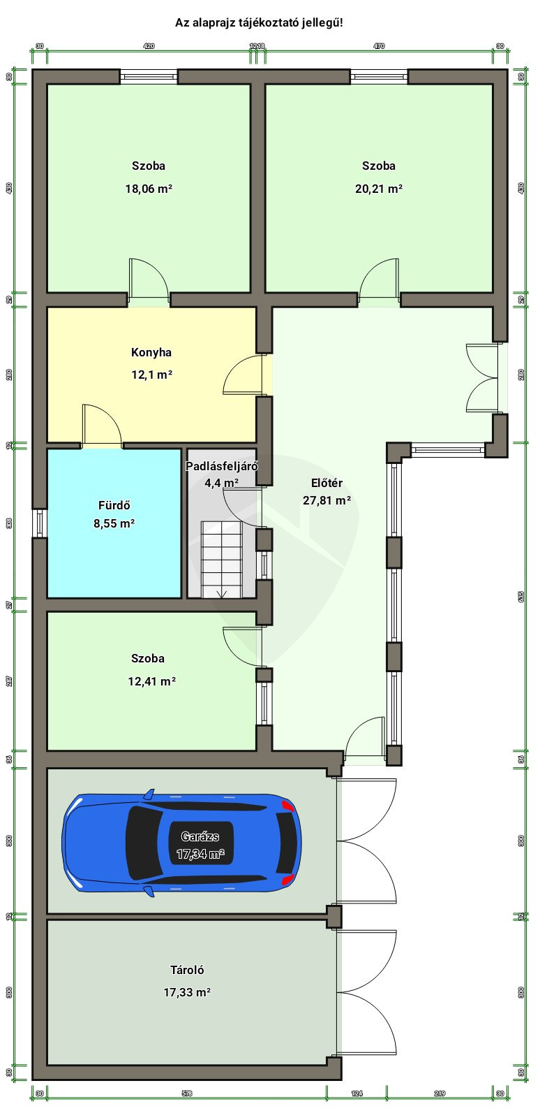
Alapterület: 103 m2
Fűtés: gáz (konvektor)
Állapota: felújítást igényel
Szobák száma: 3
Építés éve: 1960
Szintek száma: -
Részletes leírás
Fedezd fel ezt a különleges lehetőséget Zagyvaszántón, ahol egy felújítandó ház vár rád, tele lehetőségekkel! Korrekt áron most a tiéd lehet!

Ez a nettó 103 m2-es ingatlan a Köztársaság úton helyezkedik el, és kényelmes méretű 1100 négyzetméteres telken található. Az épület vertsalakból készült. Az ingatlan 3 szobával és egy fürdőszobával rendelkezik, így ideális választás családok számára vagy akár kivitelezőknek is. A telek összközművesített, víz, villany, gáz és csatorna be van kötve. Gázkonvektoros fűtés van jelenleg, ablakok régiek. Kívül-belül felújításra szorul, viszont nagy előnye, hogy így saját igényedre tudjátok szabni. Az önálló GARÁZS pedig extra kényelmet nyújt, hiszen nem kell a parkolás miatt aggódnod. Ezen kívűl számos tárolásra alkalmas helyiség rendelkezésre áll.

Zagyvaszántó CSENDES és biztonságos környezete tökéletes helyszín a nyugodt élethez. A település barátságos hangulata és a természet közelsége garantálja a jó közérzetet. A környéken található szolgáltatások, mint például boltok, iskola és orvosi rendelő, könnyen elérhetők, így a mindennapi élet kényelmesen zajlik.

Közlekedési szempontból is kedvező a helyzet: az ingatlan könnyen megközelíthető autóval (21-es főút), és a tömegközlekedési lehetőségek is rendelkezésre állnak.

Ha felkeltette az érdeklődésedet ez a tehermentes ingatlan, ne habozz! Keress bátran, ha további kérdéseid vannak, vagy szeretnél időpontot egyeztetni a ház megtekintésére.
További adatok
Telekterület: 1 100 m2
Kert mérete: 1 100 m2
Erkély mérete: -
Felszereltség: -
Parkolás: -
Kilátás: utcai
Egyéb extrák:  
Hirdető adatai
Hirdető neve: Ingatlanmentor powered by Rock Home
Kapcsolattartó: Horváth Tibor
Hirdető telefonszáma: +36 70 467 6871
Honlap: -
 
Üzenetet küldhet a hirdetőnek, árajánlatot tehet az ingatlanra:
Az Ön neve:
Az Ön e-mail címe:
Üzenet: