Ingatlan Televízió
Ingatlan Televízió
további hirdetések
adatlap bezárása

Budapest, II.kerület 
 

Hivatkozási szám: 5860560
Ingatlan adatai
Irányár: 217 000 000 Ft
Típus: telek
Kategória: eladó
Alapterület: -
Fűtés: -
Állapota: -
Szobák száma: -
Építés éve: -
Szintek száma: -
Részletes leírás
Budapest II/a kerületben, Máriaremetén 1115nm-es saroktelket az erdő szomszédságában eladó.

Erdő közvetlen szomszédságában, csendes, családi házas övezetben, átmenő forgalom mentes, aszfaltozott utcában, két utcáról megközelíthető, összközműves a telek.

Övezeti besorolás: Lke-3/SZ-3, akár 3–4 lakásos társasház építhető rá
15% beépíthetőség, 0,4 szintterületi mutató
75% zöldfelület
6 m maximális építménymagasság
Mélygarázs engedélyezett
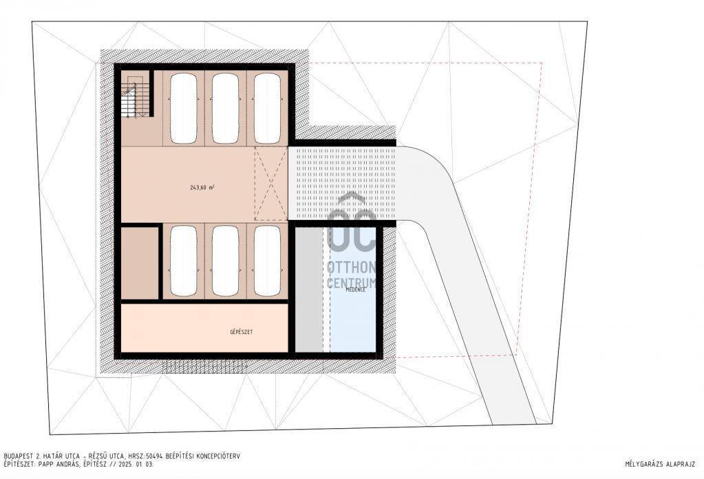
Elkészült, profi építész által készített koncepcióterv áll rendelkezésre:
Mélygarázs (medencével, gépészettel), földszint + emelet + tetőtér, modern, teraszos, panorámára nyitott lakások

Oktatás és intézmények:
Több óvoda és általános iskola a közelben, jó hírű nemzetközi és magániskolák könnyen elérhetők.

Bevásárlási lehetőségek, gyógyszertár, éttermek, kávézók, sportolási és szabadidős lehetőségek, jó közlekedés, mégis nyugalom.

Egyedi igényekre szabott lakáshitelekkel állunk rendelkezésére.
Bankfüggetlen Hitelcentrumunk az országban elérhető összes bank és hitelintézet ajánlatát versenyezteti az Ön számára díjmentesen.
Munkatársaink nagy szakmai tapasztalattal, teljes körű CSOK PLUSZ és OTTHON START PROGRAM ügyintézéssel várják Önt előre egyeztetett időpontban.
További adatok
Telekterület: 1 115 m2
Kert mérete: -
Erkély mérete: -
Felszereltség: -
Parkolás: -
Kilátás: -
Egyéb extrák:  
Hirdető adatai
Hirdető neve: oc.hu - III. kerület - Óbuda
Kapcsolattartó: Saru Kriszta
Hirdető telefonszáma: +36 70 454 1207
Honlap: -
 
Üzenetet küldhet a hirdetőnek, árajánlatot tehet az ingatlanra:
Az Ön neve:
Az Ön e-mail címe:
Üzenet: