Ingatlan Televízió
Ingatlan Televízió
további hirdetések
adatlap bezárása

Tiszafüred 
 

Hivatkozási szám: 5860822
Ingatlan adatai
Irányár: 18 000 000 Ft
Típus: ház
Kategória: eladó
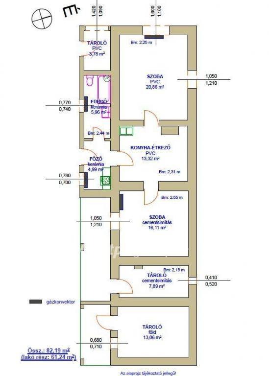
Alapterület: 82 m2
Fűtés: gáz (konvektor)
Állapota: felújítást igényel
Szobák száma: 2
Építés éve: 1940
Szintek száma: 1
Részletes leírás
TISZAFÜREDEN ELADÓ EGY FELÚJÍTANDÓ PARASZTHÁZ, A TISZA-TÓTÓL 3,7 KM-RE, KITŰNŐ KÖRNYÉKEN!!! Az eredeti épület kb. 1950-es években épült, a telken minden közmű, a ház alapterülete 82,19 m2 (lakórész: 61,24 m2). A ház 2 szobás, 1 étkező, 1 fűrdőszoba WC-vel, 1 főzhelység, 1 külső kamra, ahol a padfeljáró helyezkedik el és tornác. Az épület falazata vegyes (javarészt vályog részben tégla), födém saralt fagerendás, tetőn cserépfedés.
Udvara részben körbekerített, rajta fúrt kút, kerti csap (leszerelve, de visszaszerelhető), gyümölcsfák (cseresznye, szilva, meggy).
Az ingatlan azonnal birtokba vehető!
Távolságok: városközpont, Fő utca (700 m), játszótér (Budasi Szabaidőpark 750 m), 33-as főút (700 m), Tiszta-tó, szabad-strand (3,7 km).
Fűtés: gázkonvektor.
Melegvíz: villanybojler.
Telekméret: 3087 m2.
Közművek: víz, gáz, csatorna, villany.
Tiszafüreden a kerékpár-, horgászturizmus, vadászat, folyamatos beruházások (vannak tervezettek is) amelyek által a szezon már nem csak a nyárra korlátozódik!!! Tiszafüred és Poroszló között 2020-ban készült el a kerékpárút, ezáltal teljesen körbe lehet kerékpározni a Tisza-tavat. A távolsági busz és vonatközlekedés kiváló a településen (pályaudvarok), a város közúti megközelíthetősége szintén, 33-as, 34-es főút, M3-as autópálya 30 km-re (25 perc). Tiszafüred Tisza-tavi kisváros, a Tisza-tó fővárosa, idegenforgalmi és térségi központ a Hortobágy kapujában, igen széleskörű infrastrukturális ellátottsággal: bölcsőde, óvoda, általános iskolák, gimnázium, szakközépiskola, szakmunkásképző, gyógyszertárak, nagy áruházak (TESCO, LIDL, SPAR, Penny), szakorvosi ellátások, fizioterápiás szolgáltatások, benzinkutak (MOL, SHELL, OIL), hivatalok, járási hivatal, okmányiroda, rövidesen megújuló termálstrand, kiváló szabadvizi strand, kerékpáros centrum, kitűnő éttermek, szolgáltatások, közeli nagyobb városok Eger (50 km), Debrecen (67 km), Karcag (40 km), de Budapest is 150 km-re (1,5 óra), szomszédos Poroszlón Ökocentrum.
Amennyiben hirdetésem felkeltette érdeklődését, keressen bizalommal bármikor (hétvégén is!), lehetőleg a +36 20 496 68 10 telefonszámon, ha nem tudom azonnal felvenni, visszahívom, ha a számát kijelzi. További kérdéseire is készséggel válaszolok. A tiszafüredi OTP Ingatlanpont és OTP Pénzügyi Pont teljes körű ügyintézéssel áll az eladók és a vevők rendelkezésére!!! A kínálatunkból választott ingatlan finanszírozásához kedvezményes hitelkonstrukciókat kínálunk! Az adásvételi szerződés megkötéséhez - igény szerint - megbízható ügyvédi közreműködést biztosítunk, és segítséget nyújtunk az adásvételhez kapcsolódó ügyek intézéséhez, hiteligényléshez teljes körűen (igazolások igénylése, nyomtatványok kitöltése, benyújtása, kérelem gondozása stb.). A közművek átírását is elvégezzük az eladó és a vevő helyett.
Irányár: 18 millió Ft
Referenciaszám: M309420

Referencia szám: M309420
További adatok
Telekterület: 3 087 m2
Kert mérete: -
Erkély mérete: 18 m2
Felszereltség: -
Parkolás: lakáshoz van kültéri parkoló
Kilátás: -
Egyéb extrák:  
Hirdető adatai
Hirdető neve: otpip.hu - Tiszafüred Fő utca 29 - OTP Ingatlanpont Iroda
Kapcsolattartó: Jónás Irén
Hirdető telefonszáma: +36204966810
Honlap: -
 
Üzenetet küldhet a hirdetőnek, árajánlatot tehet az ingatlanra:
Az Ön neve:
Az Ön e-mail címe:
Üzenet: