Ingatlan Televízió
Ingatlan Televízió
további hirdetések
adatlap bezárása

Fehérgyarmat 
 

Hivatkozási szám: 5861191
Ingatlan adatai
Irányár: 26 500 000 Ft
Típus: lakás (tégla)
Kategória: eladó
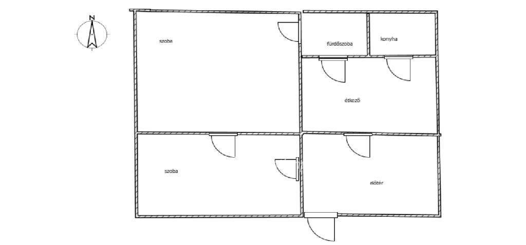
Alapterület: 56 m2
Fűtés: gáz (konvektor)
Állapota: felújítást igényel
Szobák száma: 2
Építés éve: 1970
Szintek száma: 1
Részletes leírás
Fehérgyarmat főutcáján eladó 2 szobás családi ház ? 1083?nm telek, felújítás alatt álló fürdőszoba, meleg otthon!

Fehérgyarmat központjában, főutcai elhelyezkedéssel, kínáljuk eladásra ezt a 2 szobás, családi házat, mely 1083?nm-es telken helyezkedik el. A ház felújítandó, de komfortos, a fürdőszoba éppen átmegy egy modern felújításon, így hamar használható, a ház többi részét pedig saját ízlésed szerint alakíthatod.

A fa nyílászárók kellemes hangulatot adnak, miközben hozzájárulnak a hőszigeteléshez, a gázkonvektor és a cserépkályha pedig biztosítja a kellemes meleget a hideg hónapokban. A tágas telek lehetőséget ad kert, konyhakert vagy akár garázs kialakítására.

Miért érdemes megvásárolni?

Akár azonnal lakható, vagy akár felújításra kész ? alakítsd saját ízlésed szerint

1083?nm-es telek ? kertkapcsolat, privát tér és szabad lehetőségek

Felújítás alatt álló fürdőszoba ? a komfort már biztosított
Meleg otthon: gázkonvektor + cserépkályha
Fa nyílászárók ? hangulatos és praktikus

remek belépő lehetőség első saját otthonhoz vagy befektetésre

Főutcai elhelyezkedés ? központi, mégis nyugodt környezet

Ajánljuk:

Családoknak, akik saját otthonukat szeretnék kialakítani

Befektetőknek, akik felújítanák és kiadnák

Első lakást vásárlóknak, akik központi, de nyugodt helyen keresnek otthont

Banki hátterünknek köszönhetően finanszírozási igényekben (pl. Otthon Start Hitelprogram , Babaváró, CSOK Plusz, Lakáshitel, Személyi kölcsön stb.), tekintetében is díjmentesen, soron kívüli ügyintézéssel segítem ügyfeleim! Ez a ház ideális választás mindazok számára, akik szeretnének egy saját ízlésre formálható vagy akár szinte azonnal költözhető költözhető otthont, ahol a külső megjelenést teljesen a saját stílusukra formálhatják.Kosvárosi életre vágyóknak, akik nagy kertet és kényelmes házat szeretnének
Referenciaszám: M319404
További adatok
Telekterület: 1 083 m2
Kert mérete: -
Erkély mérete: -
Felszereltség: -
Parkolás: lakáshoz van kültéri parkoló
Kilátás: -
Egyéb extrák:  
Hirdető adatai
Hirdető neve: otpip.hu - Nyíregyháza Bocskai utca 18-20 - OTP Ingatlanpont Iroda
Kapcsolattartó: Kiszely Valéria Erzsébet
Hirdető telefonszáma: +36202794535
Honlap: -
 
Üzenetet küldhet a hirdetőnek, árajánlatot tehet az ingatlanra:
Az Ön neve:
Az Ön e-mail címe:
Üzenet: