Ingatlan Televízió
Ingatlan Televízió
további hirdetések
adatlap bezárása

Jánosháza 
Sümegi út 

Hivatkozási szám: 5861225
Ingatlan adatai
Irányár: 32 000 000 Ft
Típus: lakás (tégla)
Kategória: eladó
Alapterület: 116 m2
Fűtés: egyéb
Állapota: felújított
Szobák száma: 2
Építés éve: 1959
Szintek száma: 1
Részletes leírás
Az Openhouse Szombathely Ingatlaniroda kínálatában eladó a #179178 hivatkozási számú jánosházi családi ház.

Eladó Jánosházán egy hangulatos, tágas lakóház garázzsal!


116 m2 es lakóingatlan kínálunk értékesítésre a település központjához nagyon közeli elhelyezkedéssel!


Az épületen folyamatosan történtek felújítások, de több szempontból érdekes lehet vevői oldalról, mivel akár családok számára is kiváló és üzleti célra is alkalmas lehet az elosztása miatt! Egy igazi gyöngyszem Jánosházán! Az épület első részét ,már most akár apartmanoztatásra is használható!


Az épületen 30 cm tetőfödém szigetelés történt,pár éve új tetőfedés cseréppel is megtörtént,


Homlokzati hőszigetelés hungarocell.


A lakóház fűtéséről kandallók gondoskodnak!


Szobák száma 2 db, de további kialakítása lehetséges.


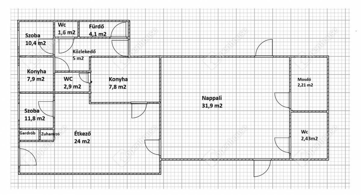
Helyiségek:
31 m2 tágas nappali,


2 fürdő


3 Wc


Gardrób


Étkező és konyha helyiség


Az épületben ipari áram is van.


Az épülethez továbbá tartoznak jó állapotú garázs, fatároló, illetve szerszámtároló helyiség!


Tágas nappaliból nyíló fedett terasz térkövezett burkolattal


600 m2 udvar zöld környezetet biztosít leendő lakói számára!

Ha felkeltette érdeklődését ez az eladó jánosházi családi ház, vagy bármely más családi ház és bővebb információt szeretne, keressen bizalommal.Hivatkozási szám: #179178

Az Openhouse Szombathely Ingatlaniroda tagjaként várom Önt az országos hálózatunk teljes kínálatával.

A családi ház vásárláshoz hitelt igényelne? Ingyenes hitelközvetítéssel segít Önnek bankfüggetlen hitelszakértőnk.

További szolgáltatásainkkal (pl. értékbecslés, energetikai tanúsítvány, jogi háttér) is segítjük Önt a vásárlásban.
Az otthon érték. Az ingatlan üzlet.

Az energetikai tanúsítvány készítése folyamatban van, amint rendelkezésre áll, úgy azzal a hirdetés frissítésre kerül.
További adatok
Telekterület: 735 m2
Kert mérete: -
Erkély mérete: -
Felszereltség: -
Parkolás: garázs
Kilátás: -
Egyéb extrák:  
Hirdető adatai
Hirdető neve: oh.hu - Openhouse Szombathely Ingatlaniroda
Kapcsolattartó: Kocsis Gábor
Hirdető telefonszáma: +36709055149
Honlap: -
 
Üzenetet küldhet a hirdetőnek, árajánlatot tehet az ingatlanra:
Az Ön neve:
Az Ön e-mail címe:
Üzenet: