Ingatlan Televízió
Ingatlan Televízió
további hirdetések
adatlap bezárása

Baja 
Muskátli utca 

Hivatkozási szám: 5861352
Ingatlan adatai
Irányár: 68 900 000 Ft
Típus: lakás (tégla)
Kategória: eladó
Alapterület: 180 m2
Fűtés: gáz (konvektor)
Állapota: felújított
Szobák száma: 3
Építés éve: 1984
Szintek száma: 1
Részletes leírás
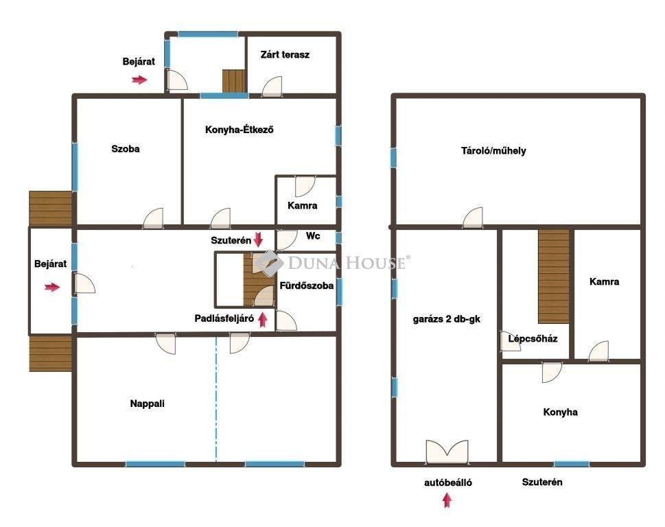
Baja, Alvég keresett környéken eladó családi ház!Baja egyik legkedveltebb részén, Alvégen kínálunk megvételre egy téglaépítésű, szigetelt 95 nm-es + 90 nm szuterén-es családi házat, sok lehetőséggel és hangulatos kerttel.A lakószinten egy tágas, déli fekvésű, napfényes nappali található, de igény esetén könnyedén 2 szobára osztható. A nappali éke egy impozáns cserépkályha. Emellett helyet kapott egy nagy előtér, egy hálószoba, valamint egy konyha-étkező kamrával, melyről egy zárt teraszra léphetünk ki. A fürdőszoba és a WC külön helyiségben található.A ház fűtését konvektorok és egy hűtő-fűtő klíma biztosítják, a melegvizet pedig egy új, 120 literes Hajdu villanybojler szolgáltatja. A tetőtér beépíthető, így a lakótér tovább bővíthető.A szuterén szinten konyha és kamra található, valamint 2 autó számára garázs, nagy tároló, és a lépcsőház, amely közvetlenül felvezet a lakószintre. Az udvar parkosított, szinteltolással kialakított veteményeskerttel, ami igazán hangulatos, és sok fantáziát rejt magában. Az utcáról egy fedett autóbeálló is megközelíthető.Az ingatlan 8 cm-es szigeteléssel, nemesvakolattal, kerámia szalagcseréppel ellátott, új műanyag, dupla üvegezésű nyílászárókkal, redőnnyel és szúnyoghálóval felszerelve. További előnye az ipari áram és a fúrt kút megléte.Főbb jellemzők:Építés:1986. téglaépítésű, 8 cm szigeteléssel, nemesvakolattalNyílászárók: új műanyag, dupla üvegezésű, redőnnyel és szúnyoghálóvalImponzáns cserépkályha a nappalibanTetőtér: beépíthető, további lakótér kialakíthatóFűtés: konvektor + hűtő-fűtő klímaMelegvíz: új, 120 literes Hajdu villanybojlerSzuterén:Konyha és kamra2 autó számára garázsNagy tárolóLépcsőház a lakótérbeAutóbeálló: fedett, utcáról nyílóTető: kerámia szalagcserépExtrák: ipari áram, fúrt kútEz a ház ideális választás lehet azok számára, akik tágas, napfényes otthont keresnek, csendes, barátságos környezetben, mégis közel a város központjához.Ha felkeltette érdeklődését, kérem hívjon bizalommal!

Referencia szám: HZ025975-ITV
További adatok
Telekterület: 631 m2
Kert mérete: -
Erkély mérete: -
Felszereltség: -
Parkolás: -
Kilátás: -
Egyéb extrák:  
Hirdető adatai
Hirdető neve: dh.hu - Baja
Kapcsolattartó: Tresz Péter
Hirdető telefonszáma: +36709456603
Honlap: -
 
Üzenetet küldhet a hirdetőnek, árajánlatot tehet az ingatlanra:
Az Ön neve:
Az Ön e-mail címe:
Üzenet: