Ingatlan Televízió
Ingatlan Televízió
további hirdetések
adatlap bezárása

Pécs 
 

Hivatkozási szám: 5861397
Ingatlan adatai
Irányár: 41 500 000 Ft
Típus: garázs
Kategória: eladó
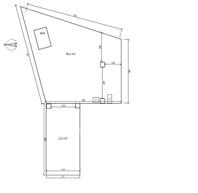
Alapterület: 81 m2
Fűtés: -
Állapota: felújított
Szobák száma: -
Építés éve: -
Szintek száma: -
Részletes leírás
81 négyzetméteres teremgarázs eladó Pécsen a Pálosok templom közelében!
3 autó elfér úgy, hogy nem akadályozzák egymást a ki-be közlekedésben. Negyedik is elfér a folyosón. A képen látható fehér autó egy aknán áll. Víz villany, szennyvíz van. A felette levő háztól külön vízórával ellátott WC és kézmosó is van. Szintén külön mérője van a villamos rendszernek. Jelen pillanatban a tulajdonos raktárnak használja, de két hét alatt kipakolja, amikor el lesz adva.
Referenciaszám: M320529

41500000 Ft

Referencia szám: M320529
További adatok
Telekterület: -
Kert mérete: -
Erkély mérete: -
Felszereltség: -
Parkolás: -
Kilátás: -
Egyéb extrák:  
Hirdető adatai
Hirdető neve: otpip.hu - Pécs Király utca 75 - OTP Ingatlanpont Iroda
Kapcsolattartó: Vincze László György
Hirdető telefonszáma: +36209384141
Honlap: -
 
Üzenetet küldhet a hirdetőnek, árajánlatot tehet az ingatlanra:
Az Ön neve:
Az Ön e-mail címe:
Üzenet: