Ingatlan Televízió
Ingatlan Televízió
további hirdetések
adatlap bezárása

Fegyvernek 
 

Hivatkozási szám: 5861431
Ingatlan adatai
Irányár: 19 000 000 Ft
Típus: ház
Kategória: eladó
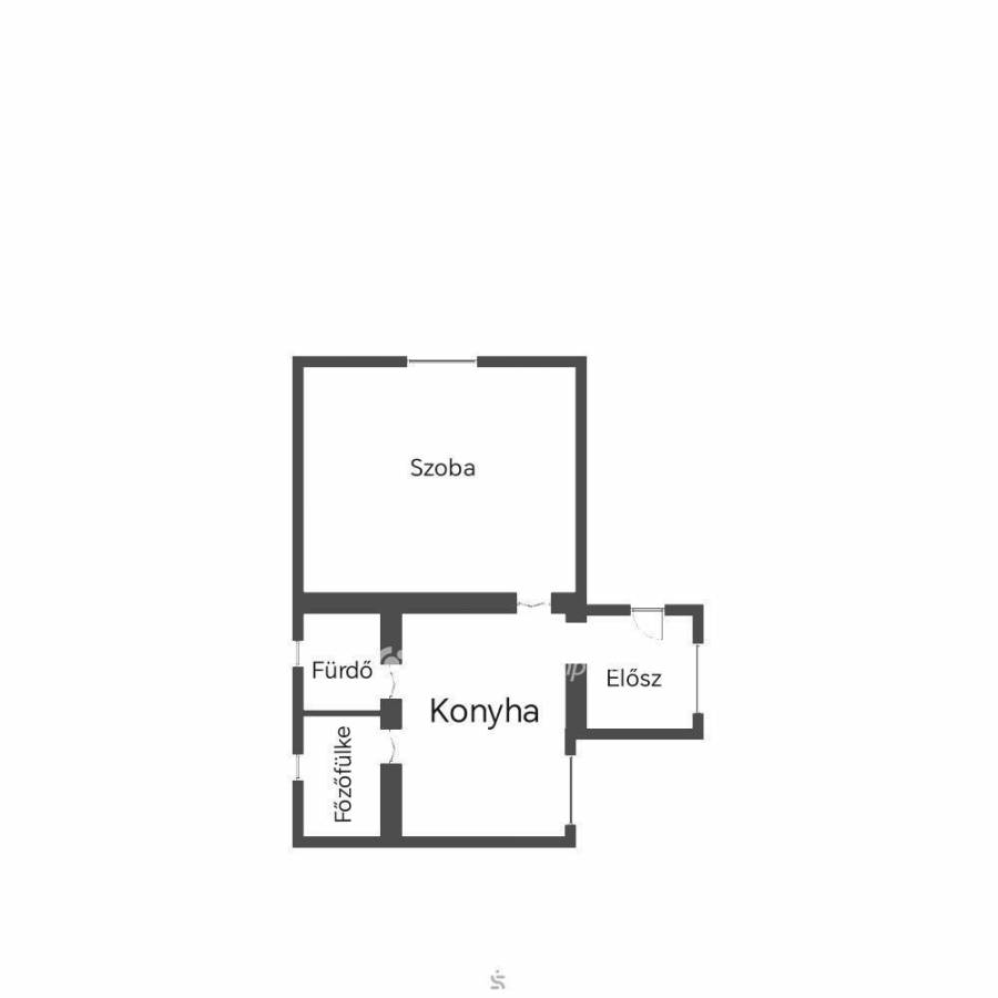
Alapterület: 50 m2
Fűtés: gáz (konvektor)
Állapota: felújított
Szobák száma: 1
Építés éve: 1970
Szintek száma: 1
Részletes leírás
Kizárólag az OTP Ingatlanpont kínálatában! Eladó álomotthon Fegyverneken-ahová csak be kell költözni!
Eladásra kínálok egy 50 m2-es, bájos, felújított házat Fegyverneken, 863 m2-es, gondozott telken-tökéletes választás, ha nyugalomra, biztonságra és otthonos hangulatra vágysz.
A vályog falazatú ház öt éve teljes felújításon esett át: új elektromos hálózat, szennyvízrendszer, modern kényelem. Belül tágas nappali/konyha, főzőfülkével, kényelmes hálószoba, előszoba és fürdőszoba várja új tulajdonosát. A klíma gondoskodik a kellemes hőmérsékletről, a három biztonsági kamera pedig a nyugodt pihenésről.
A két nagy terasz tökéletes helyszín a reggeli kávéhoz vagy esti borozgatáshoz, a garázs pedig biztonságos otthon az autódnak. A ház bútorozva eladó, így akár már holnap beköltözhetsz-csak a bőröndöd hozd!
Csendes, barátságos környezet, tágas udvar, igazi vidéki nyugalom-mindez egy szeretettel karbantartott otthonban, ahol minden részlet a kényelmet szolgálja.
Ne hagyd ki ezt a lehetőséget! Egy ilyen ár-érték arányú ház ritka kincs Fegyverneken. Hívj most, és szeress bele már az első pillanatban!
További információért hívjon bizalommal, akár hétvégén is. Megtekintésre telefonos egyeztetés alapján van lehetőség. Ingatlanirodánk ügyvédi háttérrel, CSOK, Falusi CSOK, babaváró hitel, valamint kamatkedvezményes hitel ügyintézésével támogatja ügyfelei ingatlanvásárlását!
További adatok
Telekterület: 863 m2
Kert mérete: -
Erkély mérete: -
Felszereltség: -
Parkolás: garázs
Kilátás: -
Egyéb extrák:  
Hirdető adatai
Hirdető neve: otpip.hu - Karcag Püspökladányi út 9 - OTP Ingatlanpont Iroda
Kapcsolattartó: Szabóné Nagy Anita
Hirdető telefonszáma: +36-30-475-0748
Honlap: -
 
Üzenetet küldhet a hirdetőnek, árajánlatot tehet az ingatlanra:
Az Ön neve:
Az Ön e-mail címe:
Üzenet: