Ingatlan Televízió
Ingatlan Televízió
további hirdetések
adatlap bezárása

Miskolc 
Szentgyörgy út 

Hivatkozási szám: 5862616
Ingatlan adatai
Irányár: 36 900 000 Ft
Típus: lakás (panel)
Kategória: eladó
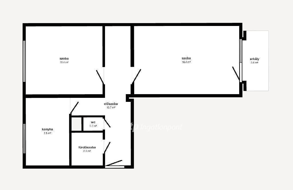
Alapterület: 55 m2
Fűtés: távfűtés
Állapota: felújított
Szobák száma: 2
Építés éve: 1980
Szintek száma: 1
Részletes leírás
Teljesen felújított, azonnal költözhető lakás az Egyetem közelében - kiváló befektetés és otthon egyben!
Eladó Miskolcon, az Avas egyik kedvelt részén egy 55 m2- es, 2 szobás, panelprogramos lakás, mindössze pár száz méterre a Miskolci Egyetemtől.
Az ingatlan 2025-ben teljes körű felújításon esett át, amely során minden a mai igényekhez igazodott! Önnek már csak költöznie kell!
Felújítás tartalma:
- teljes víz- és villanyhálózat csere (rézvezeték egészen a mérőórától)
- 25A rendelkezésre álló áramerősség
- új burkolatok a lakásban és az erkélyen is
- új belső nyílászárók és biztonsági bejárati ajtó
- szobák újraglettelve, frissen festve
- klíma és villanytűzhely előkészítés kialakítva
- fürdőszoba és wc teljesen felújítva
- redőnnyel és szúnyoghálóval felszerelt ablakok a jobb hő- és komfortérzetért

A felújítást követően a lakásban még nem laktak, így új tulajdonosa valóban egy teljesen újszerű otthonba költözhet.

Kiváló elhelyezkedés:
- Miskolci Egyetem: 1 buszmegálló vagy kb. 10 perc séta
- több buszmegálló a közelben
- bevásárlási lehetőségek: Tesco, Lidl, Penny, Spar
- óvoda, bölcsőde, iskolák, orvosi rendelő
- parkos, zöld környezet, sportpályák
- Miskolc-Tapolca könnyen elérhető.

A lakás CSOK Plusz és Otthon Start hitel igénylésére alkalmas, így családoknak és befektetőknek egyaránt ideális választás.
OTP Banki hátterünknek köszönhetően finanszírozási igényekben (pl. Otthon Start Hitelprogram, Babaváró, Falusi CSOK, CSOK Plusz, Lakáshitel, Személyi kölcsön stb.), illetve biztosítások tekintetében is díjmentesen, soron kívüli ügyintézéssel segítem ügyfeleim!
Referencia szám: M319948
Amennyiben egy modern, értékálló és kiváló elhelyezkedésű ingatlant keres, ez a lakás megér egy megtekintést.
További adatok
Telekterület: -
Kert mérete: -
Erkély mérete: 4 m2
Felszereltség: -
Parkolás: -
Kilátás: -
Egyéb extrák:  
Hirdető adatai
Hirdető neve: otpip.hu - Miskolc Szemere Bertalan utca 20 - OTP Ingatlanpont Iroda
Kapcsolattartó: Bányiczki Márk
Hirdető telefonszáma: +36-30-469-5044
Honlap: -
 
Üzenetet küldhet a hirdetőnek, árajánlatot tehet az ingatlanra:
Az Ön neve:
Az Ön e-mail címe:
Üzenet: