Ingatlan Televízió
Ingatlan Televízió
további hirdetések
adatlap bezárása

Tiszavasvári 
 

Hivatkozási szám: 5862940
Ingatlan adatai
Irányár: 31 500 000 Ft
Típus: lakás (tégla)
Kategória: eladó
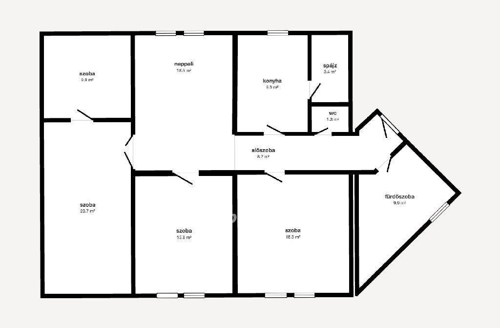
Alapterület: 115 m2
Fűtés: gáz (cirko)
Állapota: felújított
Szobák száma: 3+1
Építés éve: 1994
Szintek száma: 1
Részletes leírás
Hangulatos, tetőtéri otthon eladó Tiszavasvári csendes részén! Ha egy tágas, világos és nyugodt környezetben található otthont keresel, akkor ez a lakás igazán megér egy pillantást! Tiszavasvári a központól pár percre lévő utcájában 2 emeleten lévő, tetőtéri kialakítású lakás éladó , amely ideális választás családoknak vagy akár befektetésnek is. A 115,5 nm - es lakás praktikus elrendezésű, 3+1 szobával rendelkezik. Az épület 1994-ben épült, állapota átlagos, így az új tulajdonos saját ízlésére formálhatja, és egy igazán egyedi, szerethető otthont alakíthat ki belőle. A lakás világos, barátságos terei és nyugodt környezete garantálják a kényelmes mindennapokat. Főbb jellemzők: 3+1 szoba 115,5 nm alapterület Átlagos állapota kiváló lehetőség saját elképzelések megvalósítására Egy otthon, ahol valóban lehet tér az életre, a pihenésre és a jövő tervezésére. Jelenleg albérlők lakják, de amint a tiéd 30-60 napon belül kiköltöznek. Ne maradj le róla, egyeztess velem időpontot, és nézd meg személyesen! OTP Banki hátterünknek köszönhetően finanszírozási igényekben (pl. Otthon Start Hitelprogram, Babaváró, Falusi CSOK, CSOK Plusz, Lakáshitel, Személyi kölcsön stb.), illetve biztosítások tekintetében is díjmentesen, soron kívüli ügyintézéssel segítem ügyfeleim!
Referenciaszám: M319102

ALKALMAS-E TÁMOGATÁSOKRA: Otthon Start Hitelprogram igényelhető rá! /// ELADÁS OKA: Másik ingatlant venne /// TOVÁBB KÖLTÖZÉS: Jelenleg albérlők lakják/// BIRTOKBA ADÁS: 30 -60 nap /// MIÓTA HIRDETI:Most kezdte /// MI ALAPJÁN HATÁROZTA MEG AZ ÁRAT: Környező ingatlanok alapján /// VOLT-E MÁR ÁRCSÖKKENTÉS: Igen, általunk /// TULAJDONI VISZONYOK, HASZONÉLVEZŐ: 1 tulajdonos, nincs haszonélvező /// HITEL VAN-E: Nincs l /// MIKOR ÉS MI LETT FELÚJÍTVA: Jó állapotban van, akár azonnal költözhető, igény szerint lehet korszerűsíteni /// FELÚJÍTANDÓ RÉSZEK: Inkább kisebb korszerűsítés /// PARKOLÁS: Ház előtt /// INGATLAN ELŐNYE: Kiváló ingatlan, Jó környéken található, Otthonstartra alkalmas /// INGATLAN GYENGESÉGE: Nincs /// KÖRNYÉK: Teljesen jó környék, jó szomszédokkal, közelben minden megtalálható
Találkozási pont Az ingatlan előtt

31500000 Ft

Referencia szám: M319102
További adatok
Telekterület: -
Kert mérete: -
Erkély mérete: -
Felszereltség: -
Parkolás: utcán, közterületen
Kilátás: -
Egyéb extrák:  
Hirdető adatai
Hirdető neve: otpip.hu - Nyíregyháza Bocskai utca 18-20 - OTP Ingatlanpont Iroda
Kapcsolattartó: Szücs-Hajdú Angelika
Hirdető telefonszáma: +36-70-262-4299
Honlap: -
 
Üzenetet küldhet a hirdetőnek, árajánlatot tehet az ingatlanra:
Az Ön neve:
Az Ön e-mail címe:
Üzenet: