Ingatlan Televízió
Ingatlan Televízió
további hirdetések
adatlap bezárása

Eger 
 

Hivatkozási szám: 5862999
Ingatlan adatai
Irányár: 53 000 000 Ft
Típus: lakás (tégla)
Kategória: eladó
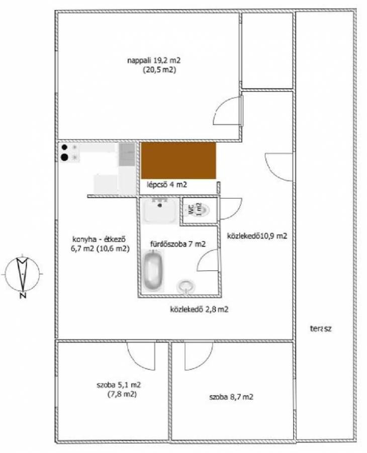
Alapterület: 149 m2
Fűtés: gáz (cirko)
Állapota: felújított
Szobák száma: 2+2
Építés éve: 1983
Szintek száma: 2
Részletes leírás
Az OTP Ingatlanpont Kizárólagos forgalmazásában! Eladó családi ház Egerben, a vár környékén!
Téglaépítésű, felújítandó családi ház eladó Eger történelmi belvárosának közvetlen közelében, a vár szomszédságában. A ház két szinten, földszint + tetőtér elrendezésben kínálja új tulajdonosának az alábbi előnyöket:
- Hasznos alapterület: 148,5 m2
- Telek területe: 135 m2
- Fa hőszigetelt üvegezésű ablakok
- Dupla komfortos (fürdő és WC mindkét szinten)
- Belső elrendezésének köszönhetően akár kétlakásos társasházzá is átalakítható
- A földszinten található egyik helyiség garázzsá is alakítható
A ház ideális lehetőség azoknak, akik egy kényelmes otthonra vágynak Eger szívében, ugyanakkor van lehetőségük saját elképzeléseik szerint felújítani és akár befektetési céllal két különálló lakássá alakítani.
Amennyiben a fotók és az ingatlan paraméterei felkeltették érdeklődését kérem, forduljon hozzám bizalommal. Irodánk, teljes körű ügyintézéssel áll az eladók és a vevők rendelkezésére! Az adásvételi szerződés megkötéséhez igény szerint megbízható ügyvédi közreműködést biztosítunk, és segítséget nyújtunk az adásvételhez kapcsolódó ügyek intézéséhez és ingyenes pénzügyi tanácsadással, kedvezményes hitelekkel (Babaváró hitel, államilag támogatott hitel, CSOK Plusz igényelhető, stb) Lakástakarék megtakarítással segítjük vásárlását. Ne hagyja ki ezt a ritka lehetőséget, hívjon minket még ma!
További adatok
Telekterület: 135 m2
Kert mérete: -
Erkély mérete: -
Felszereltség: -
Parkolás: -
Kilátás: -
Egyéb extrák:  
Hirdető adatai
Hirdető neve: otpip.hu - Eger Törvényház utca 4 - OTP Ingatlanpont Iroda
Kapcsolattartó: Koós Merse Máté
Hirdető telefonszáma: +36-70-318-0422
Honlap: -
 
Üzenetet küldhet a hirdetőnek, árajánlatot tehet az ingatlanra:
Az Ön neve:
Az Ön e-mail címe:
Üzenet: