Ingatlan Televízió
Ingatlan Televízió
további hirdetések
adatlap bezárása

Siófok 
 

Hivatkozási szám: 5863065
Ingatlan adatai
Irányár: 199 000 000 Ft
Típus: lakás (tégla)
Kategória: eladó
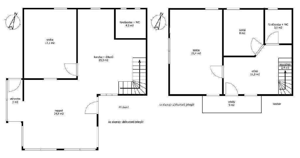
Alapterület: 121 m2
Fűtés: elektromos
Állapota: felújított
Szobák száma: 4
Építés éve: 1995
Szintek száma: 2
Részletes leírás
Balaton Déli part, Siófok, Balatonszéplak 122 m2 ikerház, 380 m2 telek eladó. A kivett lakóházként nyilvántartott ingatlan az Ezüstparton, a szabadstrandtól 400 méterre, 5 perc sétára található. A szigetelt, 3 rétegű nyílászárókkal ellátott, 2025-ben teljeskörűen felújított ház áramellátását napelem biztosítja. A ház fűtéséről az egész lakóteret melegen tartó cserépkályha gondoskodik, amit elektromos fűtőpanelek és egy tetőtéri klíma egészít ki szükség szerint. Az ingatlan értékét tovább növeli a hangulatos, parkosított kert jakuzzival, kerti sütögetővel, valamint egy fedett, 50 m2-es térkövezett terület, ami jelenleg dupla kocsibeállóként funkcionál, de teraszként, szabadidős tevékenységre, pihenésre is kiválóan alkalmas. További extrák: 11 kW-os elektromos autótöltő, 3x32 amper fázis, elektromos kapu, szúnyogháló, redőny. Az ingatlan elhelyezkedésének és kialakításának köszönhetően tökéletesen alkalmas családoknak állandó lakhatásra vagy nyaralásra, de befektetésként is kiváló, ritka lehetőség. Tömegközlekedés, bevásárlási lehetőség, vendéglátóhelyek a közelben. Bővebb információért keressen telefonon! M320769

Referencia szám: M320769
További adatok
Telekterület: 380 m2
Kert mérete: -
Erkély mérete: 5 m2
Felszereltség: -
Parkolás: lakáshoz van kültéri parkoló
Kilátás: -
Egyéb extrák:  
Hirdető adatai
Hirdető neve: otpip.hu - Siófok Sió utca 10 - OTP Ingatlanpont Iroda
Kapcsolattartó: Zsitnyányi Ágnes
Hirdető telefonszáma: +36-70-316-3864
Honlap: -
 
Üzenetet küldhet a hirdetőnek, árajánlatot tehet az ingatlanra:
Az Ön neve:
Az Ön e-mail címe:
Üzenet: