Ingatlan Televízió
Ingatlan Televízió
további hirdetések
adatlap bezárása

Mindszentkálla 
 

Hivatkozási szám: 5863241
Ingatlan adatai
Irányár: 160 000 000 Ft
Típus: ház
Kategória: eladó
Alapterület: 154 m2
Fűtés: házközponti fűtés
Állapota: felújított
Szobák száma: 4+1
Építés éve: 1920
Szintek száma: 3
Részletes leírás
Veszprém megye – Mindszentkálla – Öreg-hegy | Panorámás lakóház nagy területtel
A Káli-medence egyik legkedveltebb településén, Mindszentkálla külterületén, az Öreg-hegyen kínálok megvételre egy kivételes adottságokkal rendelkező lakóházas ingatlant, páratlan természeti környezetben.
Az ingatlan három helyrajzi számon szerepel, kizárólag egyben eladó, összesen 9162 m² területtel. Besorolása:
rét és szőlő,
rét,
gazdasági épület és udvar.
A rét és szőlő besorolású területek miatt az adásvétel kifüggesztésköteles.
A birtok jól járható, köves-földes úton közelíthető meg, teljes nyugalmat és zavartalan természetközeli életérzést biztosít, csodálatos panorámával a környező tájra.
Az épület jellemzői
A kiváló falazattal és új tetővel rendelkező ház az előző tulajdonos munkáinak köszönhetően már jó állapotban volt, majd a jelenlegi tulajdonos által az elmúlt évben teljes körű, igényes felújításon esett át.
A felújítás során a teljes komfort kialakítása, valamint prémium minőségű anyagok használata volt a fő szempont, nagyfokú szakértelemmel és ízléses megoldásokkal.
Fontos kiemelni, hogy mindez közműmentes környezetben valósult meg, modern, önálló rendszerekkel.
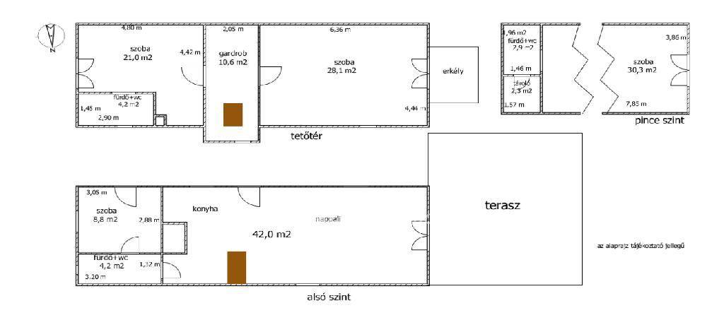
Az épület alapterülete 78 m², három szinten összesen 155 m² lakótérrel.
Helyiségkiosztás:
Tetőtér:
o 2 szoba
o egyikhez fürdőszoba és WC tartozik
o másik szobában kétszemélyes fürdőkád, valamint egy kisebb erkély
Földszint:
o fürdőszoba + WC
o kisebb szoba
o tágas, világos amerikai konyhás nappali
o kiváló minőségű, gépesített konyhabútor
o közvetlen kijárat egy nagyméretű panorámás teraszra
Alsó szint:
o a korábbi boltíves pincéből kialakított nagy, komfortos szoba
o leválasztott fürdőszoba + WC
o kis tárolóhelyiség
Műszaki felszereltség
Radiátoros fűtés minden helyiségben
Vízteres kandalló a konyha mellett
WiFi-s hűtő-fűtő klímaberendezések
Jelentősen bővített napelemes rendszer az áramellátáshoz
5 m³-es ciszterna + 3,5 m³ tartalék vízkapacitás
Előkészített esővízgyűjtés
3 m³-es szennyvíztartály
Kamerás riasztórendszer
Környezet
A ház tájolásának és a rendkívül nagy telekterületnek köszönhetően az ingatlan kiemelkedő nyugalmat, intimitást és szabadságérzetet biztosít, annak ellenére, hogy elszórtan szomszédos épületek találhatók a környéken.
A teraszokkal kialakított privát élettér és az egyedülálló panoráma jelentős hozzáadott értéket képvisel.
A leírás és a fotók csak részben adják vissza az ingatlan valódi hangulatát – személyesen megtapasztalva válik igazán meggyőzővé.
Megtekintéshez rugalmas időpont-egyeztetés lehetséges, várom megkeresését a megadott elérhetőségek egyikén.
További adatok
Telekterület: 9 162 m2
Kert mérete: -
Erkély mérete: -
Felszereltség: -
Parkolás: lakáshoz van kültéri parkoló
Kilátás: -
Egyéb extrák:  
Hirdető adatai
Hirdető neve: otpip.hu - Veszprém Kossuth utca 8 - OTP Ingatlanpont Iroda
Kapcsolattartó: Szűcs Attila
Hirdető telefonszáma: +36501144065
Honlap: -
 
Üzenetet küldhet a hirdetőnek, árajánlatot tehet az ingatlanra:
Az Ön neve:
Az Ön e-mail címe:
Üzenet: