Ingatlan Televízió
Ingatlan Televízió
további hirdetések
adatlap bezárása

Nagykanizsa 
 

Hivatkozási szám: 5867134
Ingatlan adatai
Irányár: 98 200 000 Ft
Típus: lakás (tégla)
Kategória: eladó
Alapterület: 180 m2
Fűtés: gáz (cirko)
Állapota: felújított
Szobák száma: 5+1
Építés éve: 1981
Szintek száma: 3
Részletes leírás
Az ingatlan sorházi jellegű, belváros közeli egyedi kialakítású épület, melyet a város egykori vezető statikus építésze tervezett. A félszinteltolásos megoldásnak köszönhetően rendkívül jó helykihasználással, tágas, jól tagolt terekkel rendelkezik, így ideális nagyobb család vagy több generáció együttélésére is.
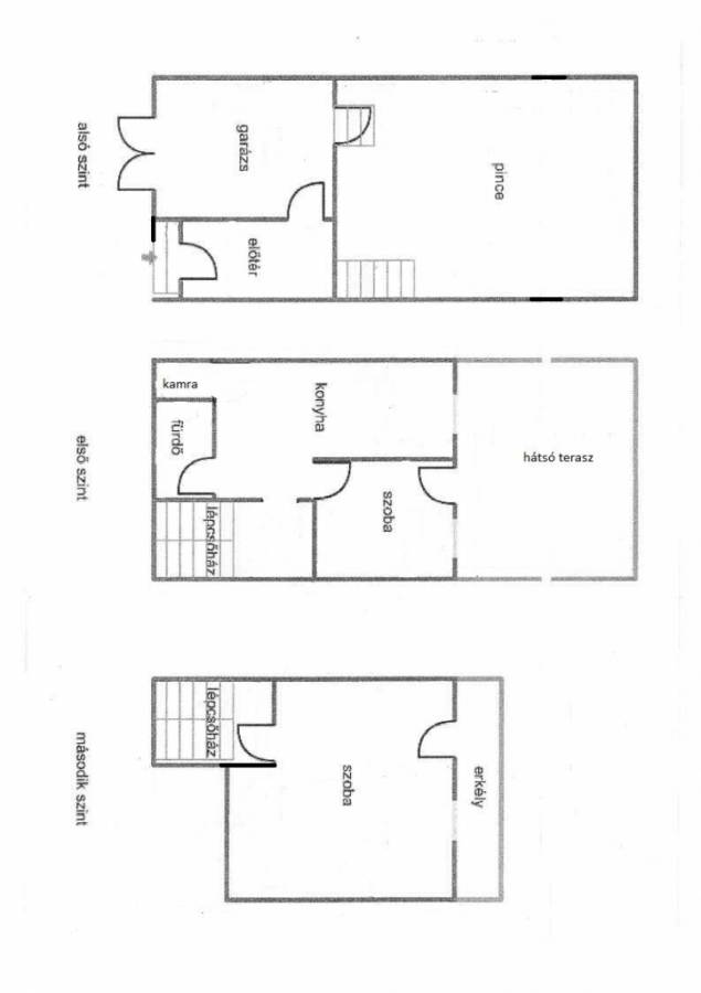
A ház 180 m² lakóterülettel, 20 m²-es garázzsal és egy 40 m²-es pincével rendelkezik. Az ingatlanhoz egy első és hátsó udvar is tartozik, amelyek biztosítják a nyugodt, privát életteret. A biztonságról távfelügyeletre kötött riasztórendszer gondoskodik.
A jelenlegi tulajdonosok 2014 végén vásárolták meg az ingatlant, majd teljes körű gépészeti korszerűsítést végeztek. Megújult az elektromos hálózat – az E.ON bekötőkábellel együtt –, valamint a gáz- és szennyvízrendszer is. A házra 6 kW-os napelemrendszer került, a világítás LED-es, így az energiafelhasználás rendkívül kedvező. A fűtést és a melegvíz-ellátást Immergas cirkókazán biztosítja, a vízlágyítást Hidrofilt rendszer segíti.
A felújítások során megtörtént a tetőcsere, a térkövezés, valamint a fa nyílászárók felújítása is. Az ingatlan természetes, egészséges lakókörnyezetet biztosít, műanyag ablakok nélkül, penészedéstől mentesen. A padlástér 40 cm vastag kőzetgyapot szigetelést, a homlokzat pedig az eredeti szigetelésen felül további 10 cm EPS hőszigetelést kapott.
Az épület alapterülete 60 m². A pince felett, az alapszinten található a garázs és a lépcsőházi bejárat. Az első félszinten konyha kamrával, egy különálló – jelenleg gardróbként használt, de igény szerint egybenyitható – szoba, valamint zuhanyzós fürdőszoba toalettel kapott helyet. Néhány lépcsővel feljebb egy 32 m²-es, világos nappali található, melyhez a ház teljes homlokzatán végigfutó erkély kapcsolódik.
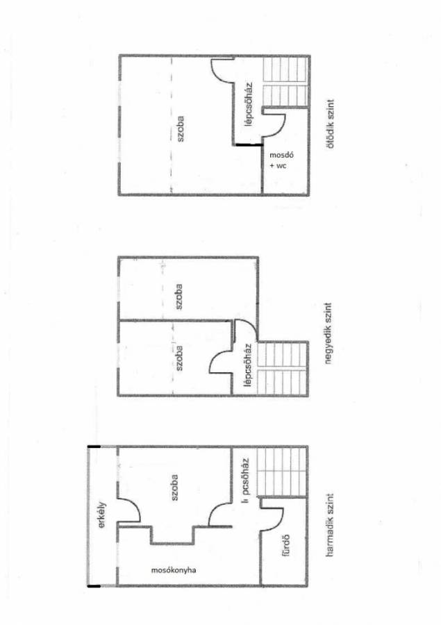
A következő félszinten egy hálószoba, egy mosókonyha és egy igényesen kialakított, olasz jacuzzikádas fürdőszoba található. Efölött két további hálószoba kapott helyet, míg a legfelső szinten egy 30 m²-nél is nagyobb szülői háló található, saját mosdóval, ahol a fürdőkád vagy zuhanykabin kiépítése már elő van készítve.
Az ingatlan kialakítása lehetővé teszi két vagy akár három különálló lakóegység létrehozását is, így ideális nagycsaládosoknak, több generáció együttélésére vagy befektetési célra egyaránt. A tulajdonosok költözés miatt a felújításokat nem kívánják tovább folytatni, ezért az ingatlan kifejezetten kedvező áron kerül értékesítésre. Kisebb ráfordítással egy valódi, többgenerációs luxusingatlan alakítható ki belőle.

Ne hagyja ki ezt a páratlan lehetőséget!

Ha egy tökéletes állapotú, tágas, azonnal költözhető családi házat keres, modern kialakítással közel a belvároshoz, ne habozzon! Hívjon minket bizalommal a megtekintésért! Irodánk teljes körű ügyintézésben segít: hitelügyintézés, ügyvéd, energetikai tanúsítvány és felújítás terén is számíthat ránk!

Referencia szám: HK-5122973-ITV
További adatok
Telekterület: 125 m2
Kert mérete: -
Erkély mérete: -
Felszereltség: -
Parkolás: garázs
Kilátás: -
Egyéb extrák:  
Hirdető adatai
Hirdető neve: ingat-land.hu - Ingat-Land Property Kft.
Kapcsolattartó: Agoudan Dániel
Hirdető telefonszáma: +36202991333
Honlap: -
 
Üzenetet küldhet a hirdetőnek, árajánlatot tehet az ingatlanra:
Az Ön neve:
Az Ön e-mail címe:
Üzenet: