Ingatlan Televízió
Ingatlan Televízió
további hirdetések
adatlap bezárása

Kajászó 
 

Hivatkozási szám: 5867867
Ingatlan adatai
Irányár: 103 900 000 Ft
Típus: lakás (tégla)
Kategória: eladó
Alapterület: 119 m2
Fűtés: gáz (cirko)
Állapota: új
Szobák száma: 4
Építés éve: 2026
Szintek száma: 2
Részletes leírás
Kajászó központjában, egy zöldövezeti mellékutcában eladó 4 db nappali + 2 és 3 hálószobás sorházi lakás saját garázzsal, terasszal, erkéllyel és saját használatú kertrésszel.

A lakásokat sok éves tapasztalattal rendelkező kivitelező építi, a ház mellett áll egy korábban elkészült, hasonló sorház.

Helyiségeiben igény szerint választhatóak a hideg és meleg burkolatok a kivitelező által meghatározott értékben (műszaki tartalom).

A lakások a garázsoknál kerülnek összeépítésre, nincs közös lakóhelyiséggel érintkező közös falazatuk, ezáltal szeparáltak egymástól.
Várható átadás: 2026. ősz

-falazata: 30-as Porotherm tégla, szigetelés: 15 cm-es homlokzati hőszigetelő rendszer, tetőcserép fedéssel épülnek.

Műanyag nyílászárók kívül, választható fóliás ajtók belül, fűtése gáz kondenzációs kazánnal, radiátoros hőleadással, ajándék klíma a lakásokhoz!

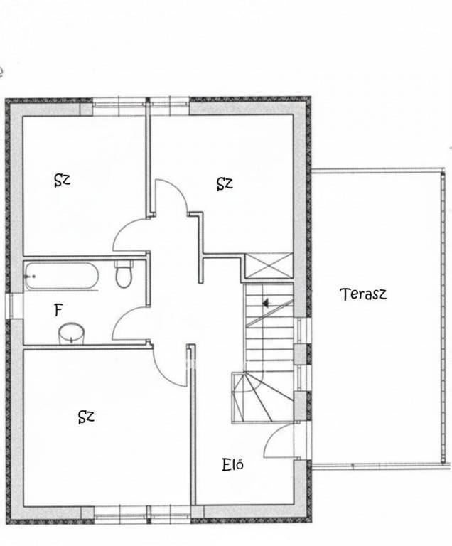
Helyiségek:

I. és IV. LAKÁS
Földszint (53,62 m2)
Előtér: 4,29 m2
WC: 1,98 m2
Nappali: 33,56 m2
Konyha-étkező: 9,45 m2
Lépcsőház-Tároló 4,34 m2
Külső terület (Terasz): 21,47 m2
Külső terület (Gépkocsi beálló): 18,60 m2
Emelet (45 m2)
Közlekedő: 11,07 m2
Fürdő: 4,44 m2
Szoba: 11,78 m2
Szoba: 8,42 m2
Gardrób (félszoba) 5,72 m2
Mosókonyha 3,56 m2
Terasz: 20,4 m2

Össz nettó: 98,6 m2 + 20.15m2 (1/3 teraszok és garázs) 119 m2

II. és III. LAKÁS
Összes hasznos alapterület: 53,7 m2
Előtér: 4,30 m2
WC: 1,98 m2
Nappali: 33,67 m2
Konyha-étkező: 9,41 m2
Lépcsőház-Tároló 4,34 m2
Külső terület (Terasz): 21,47 m2
Külső terület (Gépkocsi beálló): 18,60 m2
Emelet (45,3 m2)
Közlekedő: 10,31 m2
Fürdő: 5,52 m2
Szoba: 12,86 m2
Szoba: 8,5 m2
Szoba 8,15 m2
Terasz: 20,4 m2
Össz nettó: 99 m2 + 20.15m2 (1/3 teraszok és garázs) 119 m2

A bruttó méretet a hasznos lakóterületből, valamint a teraszok, erkélyek és garázsok egyharmadát beleszámolva állapítottam meg.

A hirdetésben szereplő képek között vannak referencia- és látványképek is.

A részletekért keressen bizalommal!
További adatok
Telekterület: 200 m2
Kert mérete: -
Erkély mérete: 42 m2
Felszereltség: -
Parkolás: garázs
Kilátás: -
Egyéb extrák:  
Hirdető adatai
Hirdető neve: otpip.hu - Székesfehérvár Palotai út 8 - OTP Ingatlanpont Iroda
Kapcsolattartó: Darnai Henrietta
Hirdető telefonszáma: +36-20-487-4399
Honlap: -
 
Üzenetet küldhet a hirdetőnek, árajánlatot tehet az ingatlanra:
Az Ön neve:
Az Ön e-mail címe:
Üzenet: