Ingatlan Televízió
Ingatlan Televízió
további hirdetések
adatlap bezárása

Szombathely 
 

Hivatkozási szám: 5867937
Ingatlan adatai
Irányár: 74 990 000 Ft
Típus: lakás (tégla)
Kategória: eladó
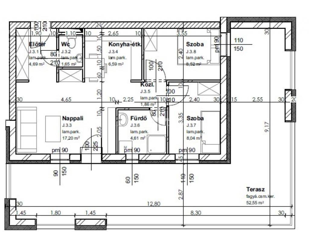
Alapterület: 53 m2
Fűtés: házközponti egyedi méréssel
Állapota: felújított
Szobák száma: 3
Építés éve: 2022
Szintek száma: 1
Részletes leírás
KIZÁRÓLAG IRODÁNK KÍNÁLATÁBAN!

Szombathely Oladi városrészen 2022-es téglaépítésű 20 lakásos társasházban 53 m2-es nappali + 2 szobás újszerű Penthouse lakás eladó 52 m2-es terasszal, saját gépkocsi beállóval.

Zöld övezet, remek kilátás jellemzi a D - Ny-i tájolású 3. emeleti nappali + 2 szobás ingatlant, helyiségeit tekintve nappali, konyha, két szoba, külön fürdővel és WC - vel rendelkezik.

A lakás fűtése egyedi szabályozású házközponti fűtés, padlófűtéssel, ezen kívül klímával felszerelt.

Az ingatlanhoz zárt udvaron egy saját gépkocsi beálló tartozik, melyet a vételár magában foglal.

Birtokba adás 2026.év vége.

Referencia szám: TL1762-ITV
További adatok
Telekterület: -
Kert mérete: -
Erkély mérete: 52 m2
Felszereltség: -
Parkolás: lakáshoz van kültéri parkoló
Kilátás: -
Egyéb extrák:  
Hirdető adatai
Hirdető neve: belvarosiip.hu - Belvárosi Ingatlan Pont
Kapcsolattartó: Kiss Balázs
Hirdető telefonszáma: 70/5411458
Honlap: -
 
Üzenetet küldhet a hirdetőnek, árajánlatot tehet az ingatlanra:
Az Ön neve:
Az Ön e-mail címe:
Üzenet: