Ingatlan Televízió
Ingatlan Televízió
további hirdetések
adatlap bezárása

Budapest, XVII.kerület 
Rákoskeresztúr 

Hivatkozási szám: 5884620
Ingatlan adatai
Irányár: 59 900 000 Ft
Típus: lakás (panel)
Kategória: eladó
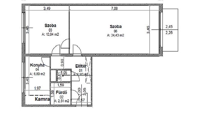
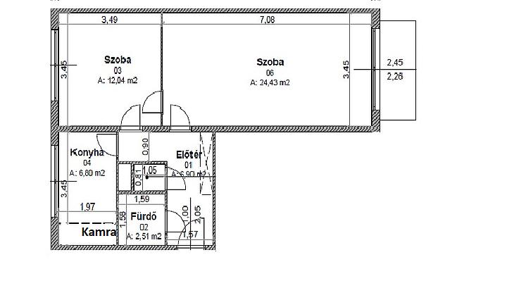
Alapterület: 54 m2
Fűtés: távfűtés
Állapota: -
Szobák száma: 2
Építés éve: -
Szintek száma: -
Részletes leírás
XVII. KERÜLETBEN: RÁKOSKERESZTÚRON, KASZÁLÓ UTCÁBAN, ELADÓ EGY II EMELETI, 54 M2-ES, KÖZEPES ÁLLAPOTÚ, ERKÉLYES, 2 SZOBÁS LAKÁS. A LAKÁSHOZ KÖZEL TALÁLHATÓ A RÁKOSPATAK, MELY MENTÉN KELLEMES SÉTÁKRA ÉS BICIKLIZÉSRE IS LEHETŐSÉG NYÍLIK.



A LAKÁS JELLEMZŐI:

A nyílászárók minden helyiségben ki lettek cserélve, redőnnyel el lettek látva.

A konyha, világos, nagy ablakkal ellátott.

A fürdőszoba kádas, a mellékhelyiség külön lett kialakítva.

Minden helyiség járólappal burkolt.

A konyhabútor és a beépített bútorzat a vételár részét képezi.

ELRENDEZÉS:

nappali, hálószoba, konyha + étkező, kádas fürdőszoba, mellékhelyiség, előszoba, közlekedő, erkély.



A KÖRNYÉK ÉS A KÖZLEKEDÉS:

Közelben, pár perc sétára található bevásárlási lehetőség, piac, gyógyszertár, bölcsőde, óvoda, iskola, játszótér, uszoda. A lépcsőház folyamatosan karbantartott, rendezett lakóközösséggel rendelkezik. A közelben a következő tömegközlekedési lehetősége elérhetőek:

161 A, 46, 97 E, 161, 161 E, 162, 162 A, 169 E, 195, 198, 202 E, 261 E, 262 buszok, valamint a 956, 990, 998 éjszakai járatok.



IRÁNYÁR: 59.9 M Ft.

Banki finanszírozással is megvásárolható!

VEVŐINK RÉSZÉRE A KÖZVETÍTÉS DÍJTALAN!

A hirdetésben szereplő adatok tájékoztató jellegűek.
További adatok
Telekterület: -
Kert mérete: -
Erkély mérete: -
Felszereltség: -
Parkolás: -
Kilátás: kertre néző
Egyéb extrák:  
Hirdető adatai
Hirdető neve: MPD Hungary Kft.
Kapcsolattartó: Tec 17 Ingatlan Kft.
Hirdető telefonszáma: +36705048744
Honlap: -
 
Üzenetet küldhet a hirdetőnek, árajánlatot tehet az ingatlanra:
Az Ön neve:
Az Ön e-mail címe:
Üzenet: