Ingatlan Televízió
Ingatlan Televízió
további hirdetések
adatlap bezárása

Budapest, III.kerület 
 

Hivatkozási szám: 5887834
Ingatlan adatai
Irányár: 178 200 000 Ft
Típus: lakás (újépítésű)
Kategória: eladó
Alapterület: 70 m2
Fűtés: -
Állapota: új
Szobák száma: 3
Építés éve: 2027
Szintek száma: -
Részletes leírás
Projekt bemutatása

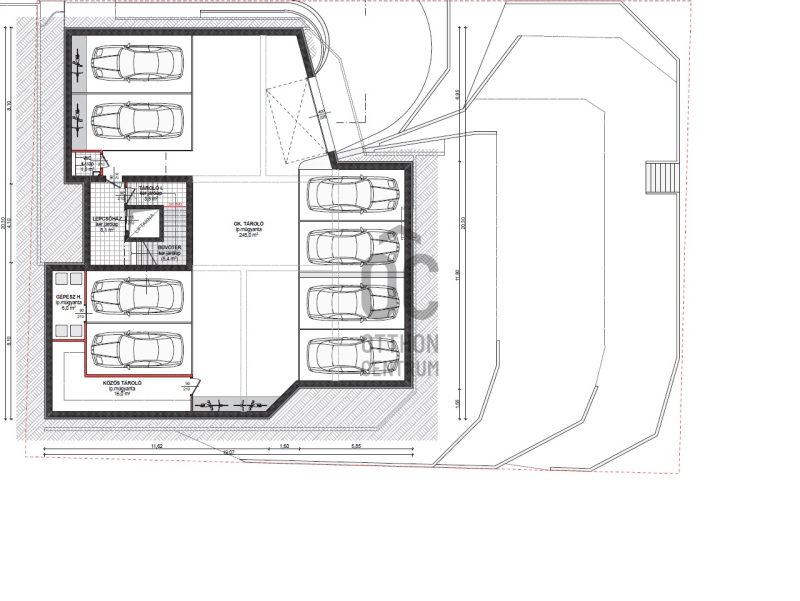
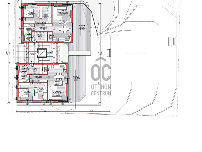
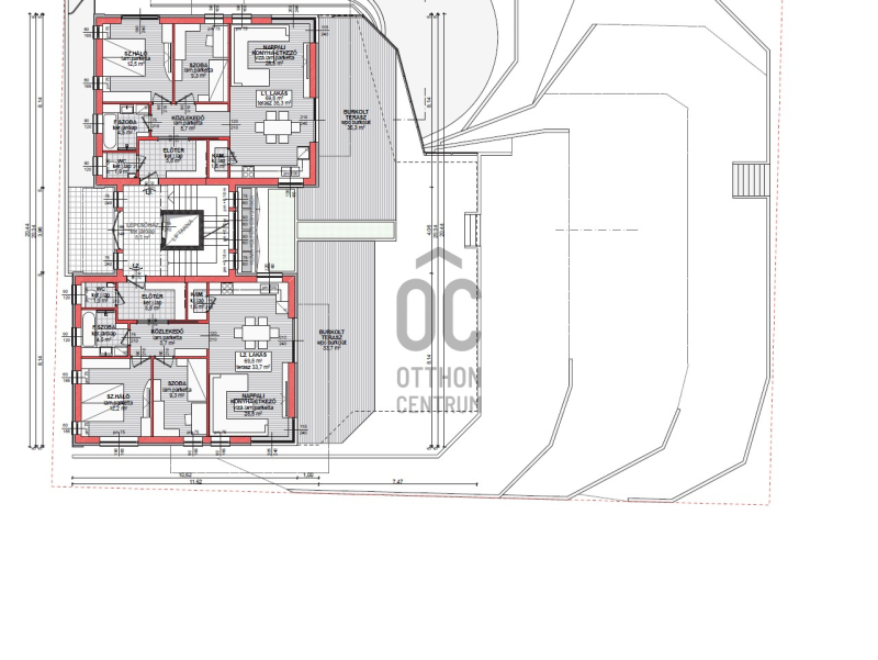
Óbuda, Hegyoldal lokációban, 2 földszinti, 2 belső kétszintes, liftes lakások kerülnek kialakításra, teremgarázzsal, tárolóval, 1400nm-es telken!
1. lakás :70nm,nappali+2 háló, +35.3nm-es terasz,
2. lakás: 70nm,nappali+2 háló+33.7 nm-es terasz,
3. lakás: nettó 119nm,bruttó: nappali+4 háló, 126nm+19+5.2 nm terasz,
4. lakás: nettó 119nm, bruttó nappali+4 háló, 126nm+19+5.2 nm terasz,
Műszaki tartalom:
-Hőszivattyús fűtésrendszer mennyezeti+padlófűtés, szellőztető rendszerrel,
-3 rétegű borovi fenyőfa nyílászárók,
-választható hideg, meleg burkolatok 30.000.- ft/nm
-beltéri ajtók:150.000.- ft/db
-szaniterek Hans Grohe vagy azzal egyenértékű, minőségű,
-elektromos redőnyök,
-üveg korlátok,
-alap kertrendezés,
Teremgarázsok vásárolhatóak az ingatlanokhoz 10mill./db
tárolók :3,ill. 6nm-esek, 1mill. ft/nm
Átadás határideje: 2027. II. félév

További információért várom hívását!
További adatok
Telekterület: -
Kert mérete: -
Erkély mérete: 35 m2
Felszereltség: -
Parkolás: -
Kilátás: kertre néző
Egyéb extrák:  
Hirdető adatai
Hirdető neve: Otthon Centrum
Kapcsolattartó: Schleier Márta
Hirdető telefonszáma: +36 70 461 9591
Honlap: -
 
Üzenetet küldhet a hirdetőnek, árajánlatot tehet az ingatlanra:
Az Ön neve:
Az Ön e-mail címe:
Üzenet: