Ingatlan Televízió
Ingatlan Televízió
további hirdetések
adatlap bezárása

Debrecen 
 

Hivatkozási szám: 5890957
Ingatlan adatai
Irányár: 399 000 000 Ft
Típus: kereskedelmi/ipari ingatlan
Kategória: eladó
Alapterület: 478 m2
Fűtés: -
Állapota: -
Szobák száma: -
Építés éve: 2002
Szintek száma: -
Részletes leírás
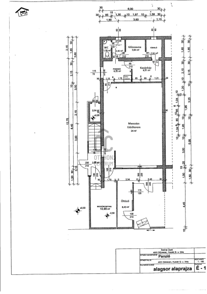
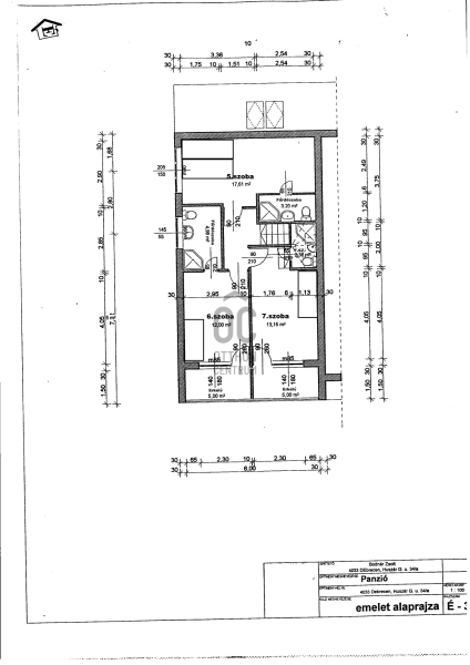
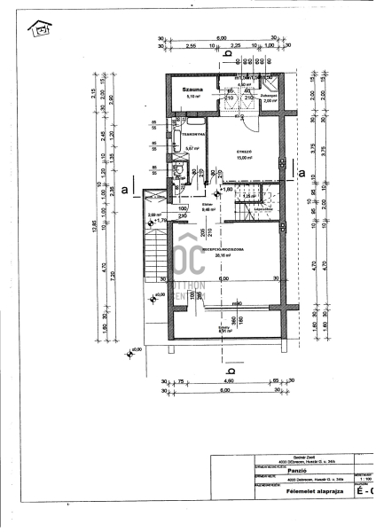
Debrecen kertvárosi övezetében a Centrumtól, és a Nagyerdőtől 20 perc séta távolságra eladó 5 szobából és 4 apartmanból álló,24 fő elszállásolásara alkalmas családi panzió.
A vendéglátó hely több, mint húsz éve üzemel, és bevezetett vendégkörrel rendelkezik. A szobafoglalásos internetes oldalakon rendkívül jó értékeléseket, és sok pozitív visszajelzést tud magáénak.
Minden szakhatósági engedéllyel rendelkezik, ami azért teszi különlegessé, mert a város ezen körzetében már nem építhető hasonló vendéglátóhely!
10-10 KW napelem, illetve napkollektor rendszer teszi az ingatlan havi rezsiköltségét rendkívül alacsonnyá! ( Évi 1500 vendégéjszakára kb. 60 ezer forint/ hó a rezsi költség)
Az épület folyamatosan karbantartott, utolsó felújítási munkák 2025-ben lettek elvégezve.
Elektromos gépjárművek töltési lehetősége, kerékpár kölcsönzés, illetve finn szauna, infra szauna, és gőz kabin használatára is lehetősége nyílik a szálláshely foglalóknak.

Üzleti érték & Know-how:
Bevezetett, aktív ügyfélkör
Igény esetén a jelenlegi üzemeltető teljes know-how-t, technológiai és működési háttértámogatást biztosít az új tulajdonos számára
Az ingatlan adottságai lehetővé teszik bármely más szolgáltatói vagy kereskedelmi tevékenység kialakítását is

Befektetési lehetőség:
Az ingatlan és a vállalkozás együttese kiváló lehetőséget kínál befektetők, vállalkozók számára
Azonnal működtethető, jövedelemtermelő egység
Rugalmas hasznosítási lehetőségek

További részletes információért, helyszíni megtekintésért, vagy üzleti konzultációért kérem, keressen bizalommal!
További adatok
Telekterület: -
Kert mérete: -
Erkély mérete: -
Felszereltség: -
Parkolás: -
Kilátás: -
Egyéb extrák:  
Hirdető adatai
Hirdető neve: Otthon Centrum
Kapcsolattartó: Gratzka Győző
Hirdető telefonszáma: +36 70 388 5461
Honlap: -
 
Üzenetet küldhet a hirdetőnek, árajánlatot tehet az ingatlanra:
Az Ön neve:
Az Ön e-mail címe:
Üzenet: