Ingatlan Televízió
Ingatlan Televízió
további hirdetések
adatlap bezárása

Budapest, XV.kerület 
 

Hivatkozási szám: 5891256
Ingatlan adatai
Irányár: 130 083 Ft
Típus: kereskedelmi/ipari ingatlan
Kategória: kiadó
Alapterület: 38 m2
Fűtés: -
Állapota: -
Szobák száma: -
Építés éve: -
Szintek száma: -
Részletes leírás
Kiadó iroda helyiség egy modern irodaházban a XV. kerületben.

Paraméterek:
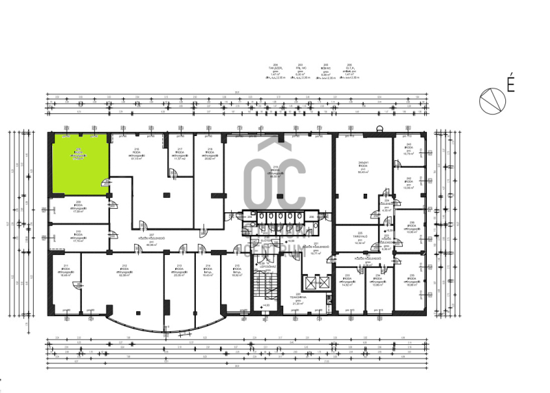
- II. emeleten elhelyezkedő iroda
- 37,59 nm
- minimum 12 hónapos bérleti időszak
- 1 havi bérleti díj és 2 havi kaució megfizetése szükséges
- bérleti díj 9 EUR/nm + ÁFA
- üzemeltetési költség 1800,-/nm + ÁFA
- portaszolgálattal rendelkező irodaház


Az irodaház teljeskörű felújítása megkezdődött, min B+ energetikai besorolással fog rendelkezni.
Hőszivattyús hűtés-fűtés, lift kialakítás, teljes szintátrendezés és műszaki korszerűsítés.

Bérleti díjak 9-13EUR/nm+áfa díjtól.
Utcai illetve bérelhető udvari gépkocsi beállókkal kialakított irodaház.
Lehetőség nyílik utcafronti üzlethelyiség illetve vendéglátó egység /kávézó, pékség, irodai kantin üzemeltetésére is/

A kínálatunkban szerepel az irodaházban lévő több raktár, üzlethelyiség és számos kisebb illetve nagyobb alapterületű kiadó iroda is.
Bővebb tájékoztatás miatt kérem keressen mielőbb.
Előzetesen meghatározott helyiség elfoglalás illetve bérlési időszak kezdete 2025 július. A bérbeadó nagyon rugalmasan tudja kezelni az igényeket és a bérlemény kialakítását.

Legkisebb bérelhető iroda 12nm, de egészen 600 nm-es irodai blokk is elérhető.

Várom megtisztelő hívását, hogy mielőbb segítsek megtalálni Önnek a legjobb választást.
További adatok
Telekterület: -
Kert mérete: -
Erkély mérete: -
Felszereltség: -
Parkolás: -
Kilátás: -
Egyéb extrák:  
Hirdető adatai
Hirdető neve: Otthon Centrum
Kapcsolattartó: Kurai Kitti
Hirdető telefonszáma: +36 70 461 9246
Honlap: -
 
Üzenetet küldhet a hirdetőnek, árajánlatot tehet az ingatlanra:
Az Ön neve:
Az Ön e-mail címe:
Üzenet: