Ingatlan Televízió
Ingatlan Televízió
további hirdetések
adatlap bezárása

Budapest, XIII.kerület 
 

Hivatkozási szám: 5891503
Ingatlan adatai
Irányár: 238 000 000 Ft
Típus: kereskedelmi/ipari ingatlan
Kategória: eladó
Alapterület: 137 m2
Fűtés: -
Állapota: -
Szobák száma: -
Építés éve: 2025
Szintek száma: -
Részletes leírás
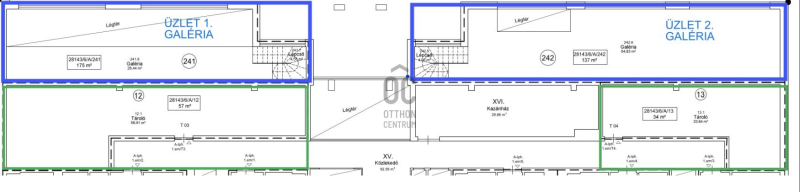
Új építésű üzlethelyiség eladó!
Lőportárdűlőn a Belváros - Városliget – Margitsziget – Westend City Center – Váci úti Irodafolyosó vonzásában, új építésű lakóparkok gyűrűjében kínálok megvételre egy új építésű épület földszintjén elhelyezkedő.
A kiemelkedő láthatóság és a jelentős forgalom ideális hátteret biztosít üzleti, irodai vagy befektetési hasznosításhoz. Továbbá alkalmas lehet cégközpontnak vagy bemutató teremnek, különböző kereskedelmi vagy szolgáltatást nyújtó üzletnek.


Teljes alapterület: 171 m²
*Üzlettér: 137 m²
*Galérián lévő tároló: +34 m² (igény szerint egybenyitható az üzlettérrel)
*Kialakítás: földszint + galéria
*Állapot: szerkezetkész – saját igények szerint formálható

Modern műszaki tartalom
*Mennyezeti hűtés-fűtés előkészítés
*Padlófűtés előkészítés

Ár:
*Vételár: 238 millió Ft + ÁFA


Közlekedés szempontjából is rengeteg előnnyel bír. A közösségi közlekedést tekintve karnyújtásnyira található az M3-as metró, a 12-es és 14-es villamos, illetve számos buszjárat, de az autóval közlekedők számára is könnyedén megközelíthető.

Budapest legnépszerűbb irodapiaci lokációja, a Váci úti irodafolyosó közelsége is nagy előnyt jelent, befektetés szempontjából.

További információért és a megtekintéssel kapcsolatosan, hívjon bizalommal!
További adatok
Telekterület: -
Kert mérete: -
Erkély mérete: -
Felszereltség: -
Parkolás: -
Kilátás: -
Egyéb extrák:  
Hirdető adatai
Hirdető neve: Otthon Centrum
Kapcsolattartó: Berzéky Katalin
Hirdető telefonszáma: +36 70 412 3146
Honlap: -
 
Üzenetet küldhet a hirdetőnek, árajánlatot tehet az ingatlanra:
Az Ön neve:
Az Ön e-mail címe:
Üzenet: