Ingatlan Televízió
Ingatlan Televízió
további hirdetések
adatlap bezárása

Veresegyház 
 

Hivatkozási szám: 5900805
Ingatlan adatai
Irányár: 123 400 000 Ft
Típus: lakás (újépítésű)
Kategória: eladó
Alapterület: 85 m2
Fűtés: -
Állapota: új
Szobák száma: 3
Építés éve: 2026
Szintek száma: -
Részletes leírás
- Az ingatlan 21 lakásos- LIFTES- társasház 1. emeletén található. A lakások különböző méretűek, némelyik exkluzív erkéllyel.
- A lakásokhoz tartozik egy fedetlen gépkocsibeálló.
- Kialakításra kerül 12 napelemes fedett parkoló- felár ellenében töltési lehetőség.
- A szintgarázsban 17 parkoló bérelhető.
- Vásárolható tároló az épületben: 6nm.

KÖLTÖZHETŐ 2026. 08.31.

Kivételes lehetőség családosok számára Veresegyházán, akik új otthonra vágynak egy modern, kényelmes és csendes környezetben! Az ingatlan, melyet most bemutatunk, egy új építésű társasházi lakás. A lakásban három tágas szoba található, amelyek ideálisak lehetnek gyermekek számára, vagy akár dolgozószobaként is funkcionálhatnak. A fürdőszoba egyedi tervezésű, és a legmodernebb anyagok felhasználásával készült, így a mindennapi használat során is maximális kényelmet biztosít. A lakás ékköve egy 26négyzetméteres erkély. Az erkély ideális helyszín lehet a családi összejövetelekhez vagy a pihenéshez, ahol a friss levegőn élvezheti a naplementét. Az ingatlan állapota kiváló, és a hőszivattyús fűtés biztosítja a hatékony és gazdaságos fűtést télen, míg nyáron kellemes hűvös levegőt biztosít. A lakás központi elhelyezkedése lehetővé teszi, hogy könnyedén hozzáférjen a környék kiváló ellátottságához. Az üzletek, iskolák és óvodák mind csupán néhány perces távolságra találhatóak, így a mindennapi élet kényelmesen megoldható. A tömegközlekedési lehetőségek is rendkívül kedvezőek, hiszen a közeli buszmegállók révén gyorsan és egyszerűen elérheti a város bármely pontját. Az autós közlekedést segíti a közelben található parkoló, ahol elektromos autó töltési lehetőség is rendelkezésre áll, így a környezettudatos családok számára is ideális választás. A környék biztonságos és csendes, így tökéletes helyszín lehet a gyermekek számára, ahol szabadon játszhatnak, miközben Ön nyugodtan pihenhet. A zöldterületek közelsége pedig lehetőséget biztosít a szabadtéri programokhoz, legyen szó piknikezésről vagy sportolásról. Ez az ingatlan nem csupán egy új lakás, hanem egy lehetőség arra, hogy családjával együtt egy otthont teremtsen, ahol mindenki megtalálja a számításait. Amennyiben kérdése van az ingatlannal kapcsolatban, vagy szeretné megtekinteni, ne habozzon kapcsolatba lépni velünk! Bizalommal keressen minket, hiszen szakértő csapatunk készséggel áll rendelkezésére, hogy minden kérdésére választ adjon és segítse Önt az ingatlanpiacon való navigálásban.
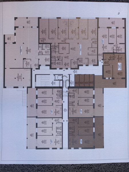
Projekt bemutatása

1. Ütem, utcai szárny:

1. Emelet, 5. lakás: 52,98 m2 + 31,87 m2 erkély a bruttó ára: 99 800000 Ft. Zöld területre néző.

1. Emelet, 6. lakás: 69,37 m2 + 21,73 m2 erkély a bruttó ára: 116 000 000 Ft.


2. Emelet, 11. lakás: 52,98 m2 + 10,25 m2 erkély ára bruttó: 84 300 000 Ft. Zöld területre néző lakás.


2. Emelet, 12. lakás: 69,25 m2 + 14,73 m2 erkély a bruttó ára: 110 800 000 Ft. Árpád ház felé utcára néző nagy drága erkéllyel (valójában 22,27 m2) és toronnyal.


2. Emelet, 13. lakás: 58,73 m2 + 8,36 m2 erkély a bruttó ára: 91 200 000 Ft. Világosabb átvilágító Átriummal.


2. Emelet, 14. lakás: 61,53 m2 + 11,75 m2 erkély a bruttó ára: 97 600 000 Ft. Középső lakás + nagy átrium előtérrel.


2. Emelet, 15. lakás: 57,78 m2 + 8,75 m2 erkély a bruttó ára: 90 000 000 Ft. Középső világos lakás kis erkéllyel.


2. Emelet, 16. lakás: 57,51 m2 + 14,73 m2 nagy erkély (19,37m2 nagy tornyos drága erkély valójában) a bruttó ára: 94 000 000 Ft.


2. Emelet, 17. lakás: 65,03 m2 + 31,89 m2 a legnagyobb erkéllyel a bruttó ára: 117 000 000 Ft.



2. Ütem, udvari szárny:

Magas földszint, 1. lakás: 71,53 m2 + 24,72 m2 nagy erkély zöld területre néző lakás. 121 300 000 Ft.


Magas földszint, 2. lakás: 72,03 m2 + 26,76 m2 nagy erkély. Zöld területre néző lakás. 123 400 000 Ft.


Magas földszint, 3. lakás: 72,03 m2 + 26,76 m2 nagy erkély. Sarki világos zöld területtel fedett erkéllyel. 115 600 000 Ft.


Magas földszint, 4. lakás: 71,65 m2 + 24,72 m2 nagy fedett erkély. 113 700 000 Ft.



2. ütem udvari szárny 1. emelet:

1. Emelet, 7. lakás: 71,44 m2 + 24,19 m2 nagy erkély zöld terület, a bruttó ára: 120 700 000 Ft.


1. Emelet, 8. lakás: 71,94 m2 + 26,76 m2 nagy erkély zöld terület, ennek a bruttó ára: 123 300 000 Ft.


1. Emelet, 9. lakás: 71,93 m2 + 26,76 m2 nagy erkély ennek a bruttó ára: 115 500 000 Ft.


1. Emelet, 10. lakás: 71,56 m2 + 24,19 m2 nagy erkély ennek a bruttó ára: 113 200 000 Ft.



2. ütem udvari szárny tetőtér:

Tetőtér 18. lakás: 50,55 m2 (Valójában 63,85 m2) + 14,33 m2 erkély ennek a bruttó ára: 83 800 000 Ft.

Tetőtér 19. lakás: 55,34 m2 (Valójában 68,17 m2) + 13,94 m2 erkély (Valójában 15,78 m2) ennek a bruttó ára: 94 500 000 Ft.


Tetőtér 20. lakás: 55,34 m2 (Valójában 68,17 m2) + 13,94 m2 erkély (Valójában 15,78 m2) ennek a bruttó ára: 94 500 000 Ft.


Tetőtér 21. lakás: 50,55 m2 (Valójában 63,85 m2) + 14,33 m2 erkély ennek a bruttó ára: 83 800 000 Ft.
További adatok
Telekterület: -
Kert mérete: -
Erkély mérete: 26 m2
Felszereltség: -
Parkolás: -
Kilátás: udvari
Egyéb extrák:  
Hirdető adatai
Hirdető neve: Otthon Centrum
Kapcsolattartó: Bohus László
Hirdető telefonszáma: +36 70 412 4106
Honlap: -
 
Üzenetet küldhet a hirdetőnek, árajánlatot tehet az ingatlanra:
Az Ön neve:
Az Ön e-mail címe:
Üzenet: