Részletes leírás
CSAK AZ OTTHON CENTRUM KIEMELT KÍNÁLATÁBAN!
Keszthely egyik legdinamikusabban fejlődő, kertvárosi pihenő övezeti részén, impozáns környezetben ,zárt lakóparkban , új építésű, korszerű ikerházfél várja első tulajdonosát. Minden szakág esetében a beépített anyag/segédanyag minőségi gyártó termékei közül kerül ki!
Az ingatlan magas minősége ,építészeti megoldása, energiahatékonysága gondoskodik a kényelemről, hozzájárulva a családok, színvonalas életre vágyók számára, hogy mind otthonként, mind nyaralóként használva élmény legyen az itt töltött idő!
Elhelyezkedése révén teljes intimitást nyújt leendő új tulajdonosai számára, csendes , családias környezetben. Ez az újonnan épülő ,stílusos ikerházfél , tökéletes hely azok számára, akik a zajos, zsúfolt napközbeni forgatag után, madárcsicsergős , megnyugtató közegbe szeretnének hazatérni.
Lássa meg a gyümölcsöző befektetési alternatívát ,ugyanis Keszthely Kertváros páratlan adottságainak köszönhetően folyamatos fejlesztések színterévé vált.
Az ingatlan kulcsrakész állapotban kerül átadásra, tereprendezett, körbekerített udvarral .
Fontos tudni: Az ár nem tartalmazza a bútorzatot és a lámpatesteket, így Ön teljes szabadságot kap a belső tér végleges kialakításában.
Műszaki tartalmon felüli igények esetén , mint például elektromos autótöltési lehetőség stb. külön megegyezés tárgyát képezik.
B1\\\' -ES INGATLAN FŐBB JELLEMZŐI:
✔ Építés éve:2025
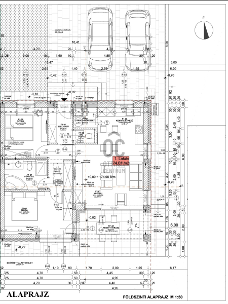
✔ 74,61 m² es lakóingatlan , 2 szoba + amerikai konyhás nappali
✔tágas , napfényes terek
✔ Falazat: 30 cm-es Porotherm falazat + 20 cm külső hőszigetelés
✔ Tetőszerkezet: cserépfedés, 30 cm födémszigetelés, esztétikus ereszcsatorna-rendszer
✔ Nyílászárók: 3 rétegű műanyag szerkezetű nyílászárók, beépített szúnyoghálóval és motoros alumínium redőnyökkel , táviramnyitokkal
✔ Hőszivattyús padlófűtés: gazdaságos és környezetbarát megoldás a fűtés szempontjából
✔ Hűtő-fűtő klímaberendezés: kellemes hőmérséklet minden évszakban
✔ Igényes belső kialakítás: karcmentes CPL beltéri ajtók választható színekben
✔ Választható burkolatok: hideg-meleg burkolatok 8.000 Ft/m² értékben
✔ Prémium fürdőszoba: épített zuhanyzó vonalfolyókával, modern egykaros csaptelepekkel
✔ Zárt lakópark
✔ 410 m² parkosított kert
✔ 18,81 m² fedett terasz
✔ térkövezett autóbeálló , akár 2 személygépkocsi számára is ideális parkolási lehetőséget nyújt
MIÉRT EZT AZ INGATLANT VÁLASSZA ?
✔ energiatakarékos fűtési rendszer
✔ Egyedi belső tér kialakítási lehetőség – A burkolatok és beltéri ajtók színe választható, így az otthona teljes mértékben az Ön stílusához igazítható.
✔ Impozáns , családias , természetközeli , zöld környezet, friss levegő
✔ Csendes, kertvárosi közeg , mégis közel a városközponthoz , Hévízhez , Cserszegtomajhoz
✔ Alacsony fenntartási költségek a legmodernebb gépészeti megoldásokkal
✔ Kulcsrakész állapot
AMENNYIBEN FELKELTETTEM ÉRDEKLŐDÉSÉT , FORDULJON HOZZÁM BIZALOMMAL , VÁROM HÍVÁSÁT AZ ORSZÁG LEGNAGYOBB ÉS LEGELISMERTEBB INGATLANKÖZVETÍTŐ HÁLÓZATA NEVÉBEN!
Ez az ingatlan a \\\"Felező csomag\\\" megbízási portfólióhoz tartozik. Részletek az Otthon Centrum weboldalán.