Ingatlan Televízió
Ingatlan Televízió
további hirdetések
adatlap bezárása

Budapest, XIV.kerület 
 

Hivatkozási szám: 5902564
Ingatlan adatai
Irányár: 329 000 000 Ft
Típus: ház
Kategória: eladó
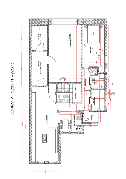
Alapterület: 260 m2
Fűtés: gáz (cirko)
Állapota: -
Szobák száma: 8
Építés éve: 2000
Szintek száma: -
Részletes leírás
Eladó Zugló egyik legszebb és legjobb részén, a piacon ritkaságnak számító, körbejárható 260 nm-es, 8 szobás, egyedi kivitelezésű, luxus családi ház.

Ide tényleg csak a bőröndjét kell hoznia.

Extrák:
- 25 nm-es garázs, másik két autó számára garázs bérlési lehetőség a szemben lévő házban
- 346 nm-es kert
- dupla üveges, műanyag ablakok
- riasztórendszer
- egyedi belsőépítészeti megoldások, különleges tapéták
- beépített gépek, sütő, főzőlap
- dupla komfort
- exkluzív kivitelezés
- hibátlan kényelem
- padlófűtés, klíma minden helyiségben
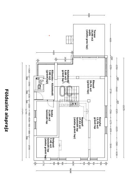
- 15 nm-es terasz
- automata locsolórendszer
- kiváló alaprajz, élhető, szeparált, külön bejáratú helyiségek
- Kétirányú tájolás, remek átszellőztethetőség, több irányból benapozottság
- kiváló lokáció, felsorolhatatlan számú, minden nemű bevásárlási lehetőség, parkok, játszóterek, iskolák, óvodák a közelben
- Nagyon kedvező rezsivel
Ha egyedi házat szeretne, ami minden igényt kielégít, ritkaság a piacon, magas minőségben épült, szuper zöld környezetben helyezkedik el, egyedi tervezésű, akkor ez a ház Önre vár!
További adatok
Telekterület: 446 m2
Kert mérete: 446 m2
Erkély mérete: 16 m2
Felszereltség: -
Parkolás: -
Kilátás: -
Egyéb extrák:  
Hirdető adatai
Hirdető neve: Otthon Centrum
Kapcsolattartó: Méreg Noémi
Hirdető telefonszáma: +36 70 461 9376
Honlap: -
 
Üzenetet küldhet a hirdetőnek, árajánlatot tehet az ingatlanra:
Az Ön neve:
Az Ön e-mail címe:
Üzenet: