Ingatlan Televízió
Ingatlan Televízió
további hirdetések
adatlap bezárása

Siófok 
 

Hivatkozási szám: 5902869
Ingatlan adatai
Irányár: 87 000 000 Ft
Típus: ház
Kategória: eladó
Alapterület: 71 m2
Fűtés: -
Állapota: új
Szobák száma: 4
Építés éve: 2026
Szintek száma: -
Részletes leírás
Siófok, Ezüstpart közelében - Egy új ház azoknak, akik nem szeretnek zajban élni.

Eladásra kínálunk egy új építésű, földszintes, önálló családi házat Siófokon, az Ezüstpart szabadstrandtól 1000 méterre.
Az ingatlan kulcsrakészen kerül átadásra, a kivitelezés minden részlete a hosszú távú minőségre és az alacsony üzemeltetési költségekre lett optimalizálva.

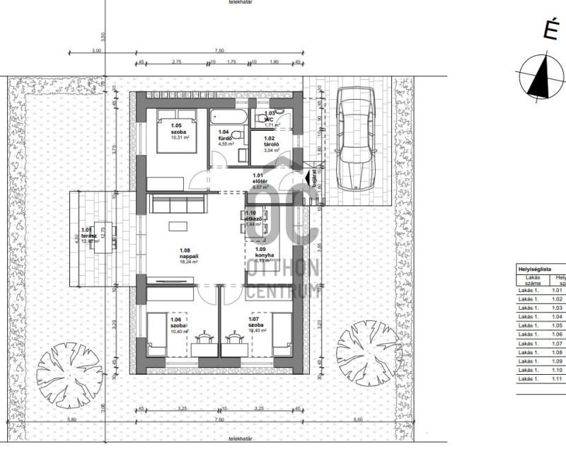
A 61–71 m² alapterületű házak átgondolt alaprajzzal készülnek:
Nappali–amerikai konyha, 2–3 hálószoba, fürdőszoba, külön WC, terasz.
Földszintes kialakítás, természetes térarányok, élhető méretek.

A szerkezet 30 cm-es Porotherm téglából épül, korszerű hőszigeteléssel, háromrétegű nyílászárókkal.
A fűtést és a használati melegvizet levegő–víz hőszivattyú biztosítja, padlófűtéssel.
A burkolatok és szaniterek meghatározott árkategórián belül választhatók.

Az ár tartalmazza a 3D kerítést, a tereprendezést és a felszíni gépkocsi-beállót.

A projektben összesen 12 önálló ház épül, külön bejárattal és saját kerítéssel.
A főbb építőanyagok már rendelkezésre állnak. Várható átadás: 2026. második negyedév.

A környezet csendes, zöld, nem a főút és nem a Balaton felőli oldalon található.
A Balaton 15 perc sétával elérhető, a mindennapi infrastruktúra néhány percre van.

Ez az ingatlan nem látványos ígéretekkel operál.
Egyszerűen jól lesz megépítve.

Tervdokumentáció és részletes műszaki tartalom kérhető.
Projekt bemutatása

Siófok, Ezüstpart közelében – ÚJ, FÖLDSZINTES otthon CSENDES, ZÖLD környezetben.

Olyan házat keres, ahol a NYUGALOM és a PRAKTIKUM találkozik?
Eladásra kínálunk Siófokon, az Ezüstpart szabadstrandtól mindössze 1000 méterre egy KULCSRAKÉSZ, önálló, földszintes családi házat.

A kivitelezés fókusza az IDŐTÁLLÓ MINŐSÉG és az ALACSONY ÜZEMELTETÉSI KÖLTSÉG – felesleges ígéretek nélkül.

Átgondolt elrendezés, ÉLHETŐ méretek: 61–71 m² alapterület.
Nappali–amerikai konyha, 2–3 hálószoba, fürdőszoba, KÜLÖN WC, TERASZ.
A LÉPCSŐMENTES kialakítás és a természetes térarányok KÉNYELMES mindennapokat biztosítanak az idősebb korosztály számára is.

Megbízható műszaki tartalom:
- 30 cm POROTHERM falazat, KORSZERŰ HŐSZIGETELÉS
- HÁROMRÉTEGŰ NYÍLÁSZÁRÓK a jobb hő- és hangkomfortért
- LEVEGŐ–VÍZ HŐSZIVATTYÚ és PADLÓFŰTÉS – ENERGIAHATÉKONY működés
- Burkolatok és szaniterek VÁLASZTHATÓK meghatározott árkategórián belül

- Az ár tartalmazza:
3D KERÍTÉS, TEREPRENDEZÉS, FELSZÍNI GÉPKOCSI-BEÁLLÓ

Projektinformációk:
Összesen 12 ÖNÁLLÓ HÁZ épül, mindegyik KÜLÖN BEJÁRATTAL és SAJÁT KERÍTÉSSEL.
A főbb építőanyagok rendelkezésre állnak.
Várható átadás: 2026. MÁSODIK NEGYEDÉV.

Elhelyezkedés:
CSENDES, ZÖLD utcák, nem a főút és nem a Balaton felőli oldal.
A Balaton 15 perc SÉTA, a mindennapi INFRASTRUKTÚRA néhány percre elérhető.

„Ez az ingatlan nem látványos ígéretekkel operál. Egyszerűen jól lesz megépítve.”


Tervdokumentáció és részletes műszaki tartalom kérhető.










#siofok #ezustpart_kozeleben #uj_haz #foldszintes #onallo_csaladi_haz #kulcsrakeszen #eladohaz #siofok #eladohazsiofok#fokihegy
További adatok
Telekterület: 300 m2
Kert mérete: 300 m2
Erkély mérete: 13 m2
Felszereltség: -
Parkolás: -
Kilátás: -
Egyéb extrák:  
Hirdető adatai
Hirdető neve: Otthon Centrum
Kapcsolattartó: Bezzeg Nikoletta
Hirdető telefonszáma: +36 70 716 8431
Honlap: -
 
Üzenetet küldhet a hirdetőnek, árajánlatot tehet az ingatlanra:
Az Ön neve:
Az Ön e-mail címe:
Üzenet: