Ingatlan Televízió
Ingatlan Televízió
további hirdetések
adatlap bezárása

Budapest, XIII.kerület 
 

Hivatkozási szám: 5903022
Ingatlan adatai
Irányár: 350 000 Ft
Típus: lakás (tégla)
Kategória: kiadó
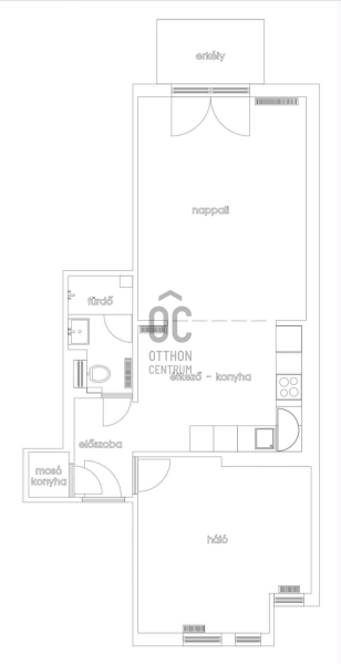
Alapterület: 57 m2
Fűtés: gáz (cirko)
Állapota: -
Szobák száma: 2
Építés éve: 2012
Szintek száma: -
Részletes leírás
Képzeld el, hogy egy igazán stílusos, modern otthonban élsz Budapest szívében, ahol minden kényelem és elegancia egy helyen találkozik. Most lehetőséged nyílik arra, hogy birtokba vedd ezt a frissen felújított, 57 négyzetméteres lakást az Újlipótvárosban, ami tökéletes választás fiatal felnőttek számára, akik értékelik a városi élet minden előnyét. Az ingatlan kiváló állapotban várja új bérlőjét, hiszen prémium kivitelezés jellemzi, így minden részletében a minőséget képviseli. A tágas nappali és az amerikai konyha kombinációja ideális teret biztosít a baráti összejövetelekhez vagy akár egy romantikus vacsorához. A lakás 2 szobával és 1 fürdőszobával rendelkezik, a 3 négyzetméteres erkély pedig lehetőséget ad arra, hogy a nap végén kint pihenj, és élvezd a városi élet nyüzsgését. A környék ellátottsága kiváló, hiszen számos bolt, étterem és kávézó található a közelben, így sosem kell messzire menned, ha valami finomra vágysz vagy csak egy jó kávéra. Az üzleti negyed közelsége miatt nemcsak a munkavállalók, hanem a fiatal vállalkozók számára is ideális helyszín lehet, hiszen könnyen elérheted a főbb közlekedési csomópontokat. A kitűnő közlekedésnek köszönhetően a város bármely pontja gyorsan megközelíthető, legyen szó akár tömegközlekedésről, akár autós közlekedésről. A biztonsági ajtó és a csendes környék garantálja, hogy otthonod valóban a pihenés szigete legyen. Ez a világos, modern lakás nemcsak a dizájnjával, hanem a nagy belmagasságával is lenyűgöz, ami még tágasabbá varázsolja a teret. Kisállattal is költözhetsz, így a hűséges társadat sem kell otthon hagynod. Ha keresel egy olyan helyet, ahol a városi élet minden előnyét élvezheted, ez a lakás tökéletes választás számodra. Ne habozz, ha kérdéseid lennének, bizalommal kereshetsz! Az ingatlan piaca folyamatosan változik, így érdemes mihamarabb lépni, hogy ne maradj le erről a fantasztikus lehetőségről!
További adatok
Telekterület: -
Kert mérete: -
Erkély mérete: 3 m2
Felszereltség: -
Parkolás: -
Kilátás: utcai
Egyéb extrák:  
Hirdető adatai
Hirdető neve: Otthon Centrum
Kapcsolattartó: Gút Zsolt
Hirdető telefonszáma: +36 70 469 3056
Honlap: -
 
Üzenetet küldhet a hirdetőnek, árajánlatot tehet az ingatlanra:
Az Ön neve:
Az Ön e-mail címe:
Üzenet: